TEL 03-3574-9651

営業時間 09:00~18:00 定休日:土日祝

SNT八丁堀ビル

TEL 03-3574-9651

営業時間 09:00~18:00 定休日:土日祝

アクセスAccess

住所
東京都中央区新川2丁目8-8
駅徒歩
京葉線
八丁堀」駅
徒歩2分
日比谷線
八丁堀」駅
徒歩4分
東西線
茅場町」駅
徒歩7分

物件概要Overview

建物種別
事業用
構造
鉄筋コンクリート(RC)
竣工年月
2021年02月
建物面積
--
新耐震基準
新耐震
総戸数
--
賃貸戸数
--
地上階数
7階
地下階数
1階
用途地域1
--
用途地域2
--
備考
--

設備詳細Equipment

設備
エレベーター
24時間使用
24時間利用可能
空調
個別空調
床仕様
OAフロア
トイレ
男女トイレ別
セキュリティ
機械警備
インターネット
店舗

SNT八丁堀ビルの空室情報Other compartments

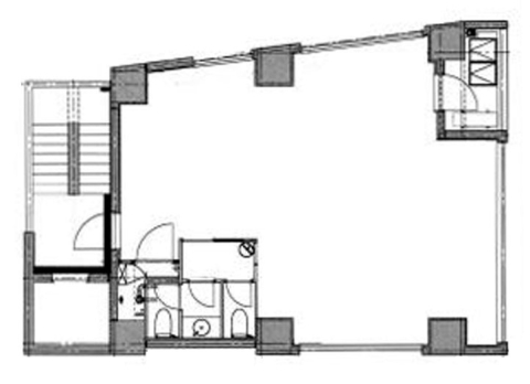
平面図 所在階 坪数
面積
賃料
共益費
保証金
敷金
償却
礼金
入居時期 詳細 お気に入り
7階
--
19.99坪
66.09㎡
48.18万円
--
6ヶ月
--
2ヶ月
--
相談
詳細を見る

アクセスマップAccess Map

ご希望の条件やご予算、移転時期など、
どんなことでもまずはお聞かせください。

物件情報やオフィス・事務所の
内見に関するご相談など
お気軽にご相談ください

ご希望の条件やご予算、移転時期など、
どんなことでもまずはお聞かせください。
  • 物件の資料請求、お問い合わせ

    ご希望の条件をお聞かせいただければ、
    最適な物件をご提案いたします。
    資料請求やご質問など、
    まずはお気軽にお問い合わせください。

  • 内見希望

    気になる物件がございましたら、実際に現地をご覧いただけます。立地や設備、周辺環境など、写真だけでは分からない詳細をご確認ください。

  • オフィスの移転に関する相談

    移転時期、予算、規模など、お客様のご要望に合わせたオフィス移転プランをご提案。課題解決から新オフィスの選定まで、サポートいたします。

お問い合わせContact

  1. 1必要項目の入力
  2. 2入力内容の確認
  3. 3お問い合わせ完了
要望
物件情報
御社名
お名前
ふりがな
メールアドレス
電話番号
お問い合わせ内容