リビエラ池袋ビル
アクセスAccess
物件概要Overview
- 建物種別
- 事業用
- 構造
- 鉄筋コンクリート(RC)
- 竣工年月
- 1973年09月
- 建物面積
- --
- 新耐震基準
- --
- 総戸数
- --
- 賃貸戸数
- --
- 地上階数
- 6階
- 地下階数
- --
- 用途地域1
- --
- 用途地域2
- --
- 備考
設備詳細Equipment
- 設備
-
エレベーター
- 24時間使用
-
24時間利用可能
- 空調
-
個別空調
- 床仕様
- トイレ
-
男女トイレ別
- セキュリティ
- インターネット
- 店舗
-
店舗利用可
アクセスマップAccess Map
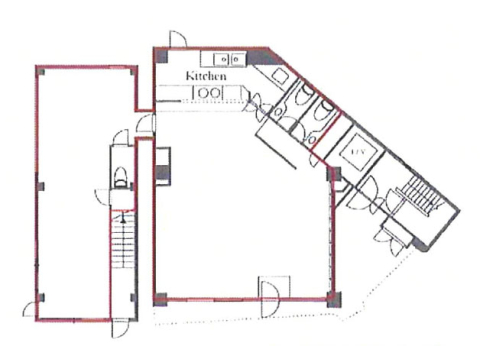
1階
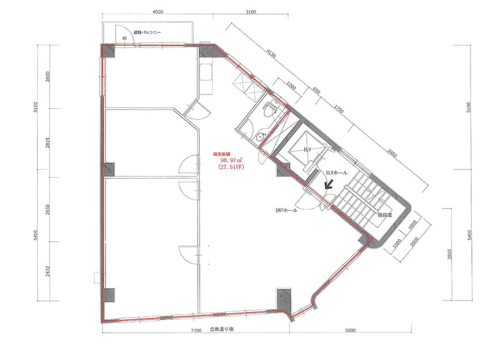
6階(A)
ご希望の条件やご予算、移転時期など、
どんなことでもまずはお聞かせください。
物件情報やオフィス・事務所の
ご希望の条件やご予算、移転時期など、
どんなことでもまずはお聞かせください。
どんなことでもまずはお聞かせください。
物件情報やオフィス・事務所の
内見に関するご相談など
お気軽にご相談ください
ご希望の条件やご予算、移転時期など、どんなことでもまずはお聞かせください。
-
物件の資料請求、お問い合わせ
ご希望の条件をお聞かせいただければ、
最適な物件をご提案いたします。
資料請求やご質問など、
まずはお気軽にお問い合わせください。 -
内見希望
気になる物件がございましたら、実際に現地をご覧いただけます。立地や設備、周辺環境など、写真だけでは分からない詳細をご確認ください。
-
オフィスの移転に関する相談
移転時期、予算、規模など、お客様のご要望に合わせたオフィス移転プランをご提案。課題解決から新オフィスの選定まで、サポートいたします。
似た条件の物件Properties
-
NCKビル6階
41.87万円
34.61坪 / 114.41㎡
東京都文京区本郷3丁目3-11
中央線(快速)
「小川町」駅 徒歩4分
NCKビル2階
24.06万円
19.02坪 / 62.87㎡
東京都文京区本郷3丁目3-11
中央線(快速)
「小川町」駅 徒歩4分
NCKビル4階
47.58万円
34.61坪 / 114.41㎡
東京都文京区本郷3丁目3-11
中央線(快速)
「小川町」駅 徒歩4分
NCKビル1階
18.96万円
9.58坪 / 31.66㎡
東京都文京区本郷3丁目3-11
中央線(快速)
「小川町」駅 徒歩4分お問い合わせContact
- 1必要項目の入力
- 2入力内容の確認
- 3お問い合わせ完了