陽友神田ビル
アクセスAccess
物件概要Overview
- 建物種別
- 事業用
- 構造
- 鉄骨鉄筋コンクリート(SRC)
- 竣工年月
- 1985年02月
- 建物面積
- --
- 新耐震基準
- --
- 総戸数
- --
- 賃貸戸数
- --
- 地上階数
- 8階
- 地下階数
- 1階
- 用途地域1
- --
- 用途地域2
- --
- 備考
設備詳細Equipment
- 設備
-
エレベーター
エレベーター2基
- 24時間使用
-
24時間利用可能
- 空調
-
個別空調
- 床仕様
- トイレ
-
男女トイレ別
- セキュリティ
-
機械警備
- インターネット
-
光ファイバー
- 店舗
陽友神田ビルの空室情報Other compartments
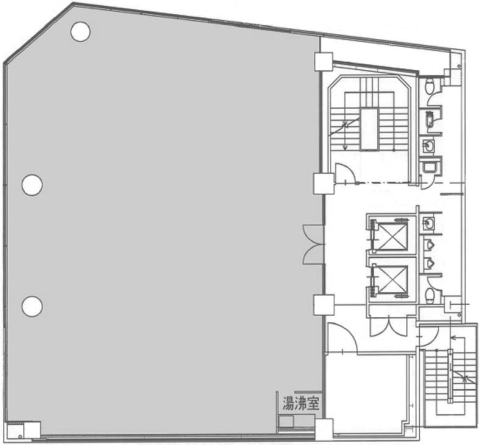
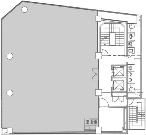
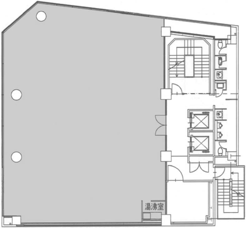
| 平面図 | 所在階 | 坪数 面積 |
賃料 共益費 |
保証金 敷金 |
償却 礼金 |
入居時期 | 詳細 | お気に入り |
|---|---|---|---|---|---|---|---|---|
|
5階 -- |
67.23坪 222.24㎡ |
110.92万円 -- |
-- 10ヶ月 |
-- -- |
即時 |
詳細を見る | |
|
7階 -- |
67.23坪 222.24㎡ |
121.94万円 -- |
-- 10ヶ月 |
-- -- |
予定 2022年09月上旬 |
詳細を見る |
アクセスマップAccess Map
ご希望の条件やご予算、移転時期など、
どんなことでもまずはお聞かせください。
物件情報やオフィス・事務所の
ご希望の条件やご予算、移転時期など、
どんなことでもまずはお聞かせください。
どんなことでもまずはお聞かせください。
物件情報やオフィス・事務所の
内見に関するご相談など
お気軽にご相談ください
ご希望の条件やご予算、移転時期など、どんなことでもまずはお聞かせください。
-
物件の資料請求、お問い合わせ
ご希望の条件をお聞かせいただければ、
最適な物件をご提案いたします。
資料請求やご質問など、
まずはお気軽にお問い合わせください。 -
内見希望
気になる物件がございましたら、実際に現地をご覧いただけます。立地や設備、周辺環境など、写真だけでは分からない詳細をご確認ください。
-
オフィスの移転に関する相談
移転時期、予算、規模など、お客様のご要望に合わせたオフィス移転プランをご提案。課題解決から新オフィスの選定まで、サポートいたします。
似た条件の物件Properties
-
NCKビル6階
41.87万円
34.61坪 / 114.41㎡
東京都文京区本郷3丁目3-11
中央線(快速)
「小川町」駅 徒歩4分
NCKビル2階
24.06万円
19.02坪 / 62.87㎡
東京都文京区本郷3丁目3-11
中央線(快速)
「小川町」駅 徒歩4分
NCKビル4階
47.58万円
34.61坪 / 114.41㎡
東京都文京区本郷3丁目3-11
中央線(快速)
「小川町」駅 徒歩4分
NCKビル1階
18.96万円
9.58坪 / 31.66㎡
東京都文京区本郷3丁目3-11
中央線(快速)
「小川町」駅 徒歩4分お問い合わせContact
- 1必要項目の入力
- 2入力内容の確認
- 3お問い合わせ完了