日比谷国際ビル
アクセスAccess
物件概要Overview
- 建物種別
- 事業用
- 構造
- 鉄骨造
- 竣工年月
- 1981年10月
- 建物面積
- --
- 新耐震基準
- --
- 総戸数
- --
- 賃貸戸数
- --
- 地上階数
- 31階
- 地下階数
- 5階
- 用途地域1
- --
- 用途地域2
- --
- 備考
設備詳細Equipment
- 設備
-
エレベーター
- 24時間使用
-
24時間利用可能
- 空調
-
セントラル空調
- 床仕様
- トイレ
-
男女トイレ別
- セキュリティ
-
24時間有人管理
- インターネット
-
光ファイバー
- 店舗
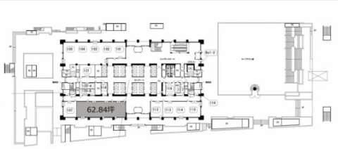
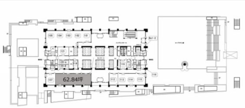
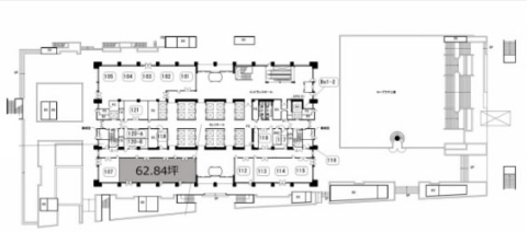
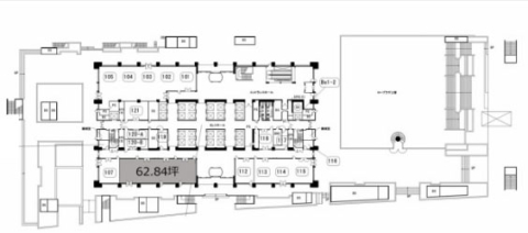
日比谷国際ビルの空室情報Other compartments
| 平面図 | 所在階 | 坪数 面積 |
賃料 共益費 |
保証金 敷金 |
償却 礼金 |
入居時期 | 詳細 | お気に入り |
|---|---|---|---|---|---|---|---|---|
|
1階 -- |
62.84坪 207.73㎡ |
要相談 -- |
-- -- |
-- -- |
即時 |
詳細を見る |
アクセスマップAccess Map
ご希望の条件やご予算、移転時期など、
どんなことでもまずはお聞かせください。
物件情報やオフィス・事務所の
ご希望の条件やご予算、移転時期など、
どんなことでもまずはお聞かせください。
どんなことでもまずはお聞かせください。
物件情報やオフィス・事務所の
内見に関するご相談など
お気軽にご相談ください
ご希望の条件やご予算、移転時期など、どんなことでもまずはお聞かせください。
-
物件の資料請求、お問い合わせ
ご希望の条件をお聞かせいただければ、
最適な物件をご提案いたします。
資料請求やご質問など、
まずはお気軽にお問い合わせください。 -
内見希望
気になる物件がございましたら、実際に現地をご覧いただけます。立地や設備、周辺環境など、写真だけでは分からない詳細をご確認ください。
-
オフィスの移転に関する相談
移転時期、予算、規模など、お客様のご要望に合わせたオフィス移転プランをご提案。課題解決から新オフィスの選定まで、サポートいたします。
似た条件の物件Properties
-
麻布エーエスビル1階
97.35万円
35.40坪 / 117.00㎡
東京都港区東麻布2丁目13-10
南北線
「麻布十番」駅 徒歩4分
小倉ビル2階
34.1万円
14.54坪 / 48.06㎡
東京都港区新橋2丁目11-8
山手線
「新橋」駅 徒歩4分
御成門コープ4階
20.35万円
12.00坪 / 39.67㎡
東京都港区西新橋3丁目24-1
都営三田線
「御成門」駅 徒歩1分
パークサイド多摩川2階
7.2万円
6.76坪 / 22.37㎡
東京都大田区西六郷4丁目19-15
京急本線
「六郷土手」駅 徒歩3分お問い合わせContact
- 1必要項目の入力
- 2入力内容の確認
- 3お問い合わせ完了