銀座三真ビル
アクセスAccess
- 住所
- 東京都中央区銀座5丁目15-19
- 駅徒歩
-
日比谷線「東銀座」駅徒歩1分
物件概要Overview
- 建物種別
- 事業用
- 構造
- 鉄骨鉄筋コンクリート(SRC)
- 竣工年月
- 1991年01月
- 建物面積
- --
- 新耐震基準
- --
- 総戸数
- --
- 賃貸戸数
- --
- 地上階数
- 8階
- 地下階数
- --
- 用途地域1
- --
- 用途地域2
- --
- 備考
設備詳細Equipment
- 設備
-
エレベーター
- 24時間使用
- 空調
-
個別空調
- 床仕様
- トイレ
-
男女トイレ別
- セキュリティ
-
機械警備
- インターネット
- 店舗
銀座三真ビルの空室情報Other compartments
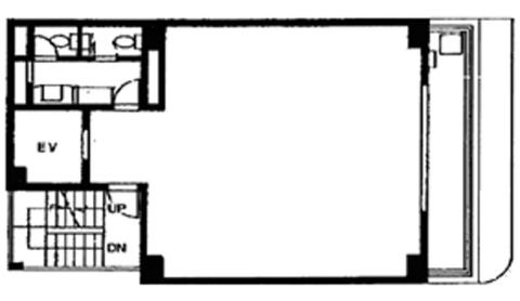
| 平面図 | 所在階 | 坪数 面積 |
賃料 共益費 |
保証金 敷金 |
償却 礼金 |
入居時期 | 詳細 | お気に入り |
|---|---|---|---|---|---|---|---|---|
|
7階 -- |
21坪 69.42㎡ |
39.27万円 -- |
4ヶ月 -- |
-- 1ヶ月 |
即時 |
詳細を見る |
アクセスマップAccess Map
ご希望の条件やご予算、移転時期など、
どんなことでもまずはお聞かせください。
物件情報やオフィス・事務所の
ご希望の条件やご予算、移転時期など、
どんなことでもまずはお聞かせください。
どんなことでもまずはお聞かせください。
物件情報やオフィス・事務所の
内見に関するご相談など
お気軽にご相談ください
ご希望の条件やご予算、移転時期など、どんなことでもまずはお聞かせください。
-
物件の資料請求、お問い合わせ
ご希望の条件をお聞かせいただければ、
最適な物件をご提案いたします。
資料請求やご質問など、
まずはお気軽にお問い合わせください。 -
内見希望
気になる物件がございましたら、実際に現地をご覧いただけます。立地や設備、周辺環境など、写真だけでは分からない詳細をご確認ください。
-
オフィスの移転に関する相談
移転時期、予算、規模など、お客様のご要望に合わせたオフィス移転プランをご提案。課題解決から新オフィスの選定まで、サポートいたします。
似た条件の物件Properties
-
グローリオシェルト武蔵小杉Ⅱ3階
13.5万円
坪 / 25.10㎡
神奈川県川崎市中原区小杉町351-1
南武線
「武蔵小杉」駅 徒歩10分
グローリオシェルト武蔵小杉Ⅱ2階
13.2万円
坪 / 25.29㎡
神奈川県川崎市中原区小杉町351-1
南武線
「武蔵小杉」駅 徒歩10分
グローリオシェルト武蔵小杉Ⅱ2階
13.1万円
坪 / 25.29㎡
神奈川県川崎市中原区小杉町351-1
南武線
「武蔵小杉」駅 徒歩10分
グローリオシェルト武蔵小杉Ⅱ2階
13.2万円
坪 / 25.35㎡
神奈川県川崎市中原区小杉町351-1
南武線
「武蔵小杉」駅 徒歩10分お問い合わせContact
- 1必要項目の入力
- 2入力内容の確認
- 3お問い合わせ完了