愛場新橋タワー
アクセスAccess
物件概要Overview
- 建物種別
- 事業用
- 構造
- 鉄骨造
- 竣工年月
- 2022年05月
- 建物面積
- --
- 新耐震基準
- 新耐震
- 総戸数
- --
- 賃貸戸数
- --
- 地上階数
- 11階
- 地下階数
- --
- 用途地域1
- --
- 用途地域2
- --
- 備考
- --
設備詳細Equipment
- 設備
-
エレベーター
- 24時間使用
- 空調
-
個別空調
- 床仕様
- トイレ
- セキュリティ
-
機械警備
- インターネット
- 店舗
愛場新橋タワーの空室情報Other compartments
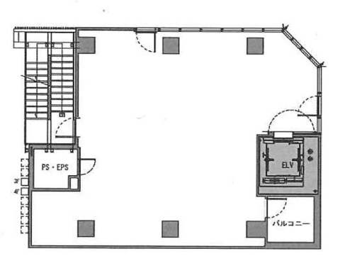
| 平面図 | 所在階 | 坪数 面積 |
賃料 共益費 |
保証金 敷金 |
償却 礼金 |
入居時期 | 詳細 | お気に入り |
|---|---|---|---|---|---|---|---|---|
|
4階 -- |
27.06坪 89.45㎡ |
119.06万円 -- |
8ヶ月 -- |
2ヶ月 -- |
即時 |
詳細を見る | |
|
4階 -- |
27.06坪 89.45㎡ |
119.06万円 -- |
8ヶ月 -- |
2ヶ月 -- |
即時 |
詳細を見る |
アクセスマップAccess Map
ご希望の条件やご予算、移転時期など、
どんなことでもまずはお聞かせください。
物件情報やオフィス・事務所の
ご希望の条件やご予算、移転時期など、
どんなことでもまずはお聞かせください。
どんなことでもまずはお聞かせください。
物件情報やオフィス・事務所の
内見に関するご相談など
お気軽にご相談ください
ご希望の条件やご予算、移転時期など、どんなことでもまずはお聞かせください。
-
物件の資料請求、お問い合わせ
ご希望の条件をお聞かせいただければ、
最適な物件をご提案いたします。
資料請求やご質問など、
まずはお気軽にお問い合わせください。 -
内見希望
気になる物件がございましたら、実際に現地をご覧いただけます。立地や設備、周辺環境など、写真だけでは分からない詳細をご確認ください。
-
オフィスの移転に関する相談
移転時期、予算、規模など、お客様のご要望に合わせたオフィス移転プランをご提案。課題解決から新オフィスの選定まで、サポートいたします。
似た条件の物件Properties
-
銀座PREX East9階
478.5万円
150.04坪 / 496.01㎡
東京都中央区築地2丁目1-4
有楽町線
「新富町」駅 徒歩2分
ダイアパレス三軒茶屋3階
13万円
10.08坪 / 33.33㎡
東京都世田谷区太子堂1丁目12-29
東急田園都市線
「三軒茶屋」駅 徒歩2分
石田ビル4階
34.65万円
21.00坪 / 69.40㎡
東京都港区新橋4丁目25-4
山手線
「新橋」駅 徒歩5分
新橋IKビル3階
79.2万円
48.00坪 / 158.70㎡
東京都港区新橋6丁目20-11
都営三田線
「御成門」駅 徒歩3分お問い合わせContact
- 1必要項目の入力
- 2入力内容の確認
- 3お問い合わせ完了