丸石新橋ビル
アクセスAccess
- 住所
- 東京都港区新橋5丁目7-12
- 駅徒歩
-
山手線「新橋」駅徒歩7分
物件概要Overview
- 建物種別
- 事業用
- 構造
- 鉄骨鉄筋コンクリート(SRC)
- 竣工年月
- 1995年01月
- 建物面積
- --
- 新耐震基準
- --
- 総戸数
- --
- 賃貸戸数
- --
- 地上階数
- 8階
- 地下階数
- --
- 用途地域1
- --
- 用途地域2
- --
- 備考
設備詳細Equipment
- 設備
-
エレベーター
- 24時間使用
- 空調
-
個別空調
- 床仕様
- トイレ
-
男女トイレ別
- セキュリティ
-
機械警備
- インターネット
- 店舗
丸石新橋ビルの空室情報Other compartments
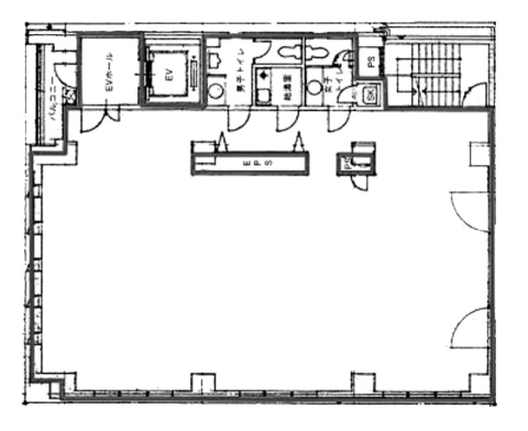
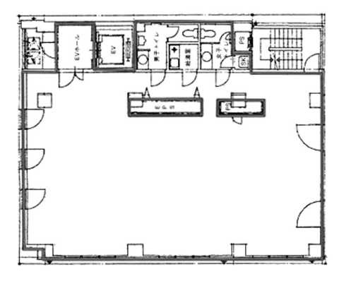
| 平面図 | 所在階 | 坪数 面積 |
賃料 共益費 |
保証金 敷金 |
償却 礼金 |
入居時期 | 詳細 | お気に入り |
|---|---|---|---|---|---|---|---|---|
|
2階 -- |
45.87坪 151.63㎡ |
要相談 15.13万円 |
-- 12ヶ月 |
-- -- |
即時 |
詳細を見る | |
|
4階 -- |
46.5坪 153.71㎡ |
要相談 15.34万円 |
-- 12ヶ月 |
-- -- |
即時 |
詳細を見る | |
|
6階 -- |
46.44坪 153.52㎡ |
要相談 15.32万円 |
-- 12ヶ月 |
-- -- |
即時 |
詳細を見る | |
|
8階 -- |
46.44坪 153.52㎡ |
要相談 15.32万円 |
-- 12ヶ月 |
-- -- |
即時 |
詳細を見る |
アクセスマップAccess Map
ご希望の条件やご予算、移転時期など、
どんなことでもまずはお聞かせください。
物件情報やオフィス・事務所の
ご希望の条件やご予算、移転時期など、
どんなことでもまずはお聞かせください。
どんなことでもまずはお聞かせください。
物件情報やオフィス・事務所の
内見に関するご相談など
お気軽にご相談ください
ご希望の条件やご予算、移転時期など、どんなことでもまずはお聞かせください。
-
物件の資料請求、お問い合わせ
ご希望の条件をお聞かせいただければ、
最適な物件をご提案いたします。
資料請求やご質問など、
まずはお気軽にお問い合わせください。 -
内見希望
気になる物件がございましたら、実際に現地をご覧いただけます。立地や設備、周辺環境など、写真だけでは分からない詳細をご確認ください。
-
オフィスの移転に関する相談
移転時期、予算、規模など、お客様のご要望に合わせたオフィス移転プランをご提案。課題解決から新オフィスの選定まで、サポートいたします。
似た条件の物件Properties
-
NKグリーンビル3階
50.57万円
48.40坪 / 160.01㎡
東京都台東区浅草橋2丁目28-12
中央・総武線
「浅草橋」駅 徒歩5分
駒見ビル3階
19.25万円
13.00坪 / 42.97㎡
東京都港区西新橋2丁目11-9
都営三田線
「内幸町」駅 徒歩6分
尾家ビル5階
21.78万円
18.00坪 / 59.50㎡
東京都港区芝4丁目7-6
都営浅草線
「三田」駅 徒歩5分
虎ノ門浜崎ビル4階
24.13万円
16.25坪 / 53.75㎡
東京都港区虎ノ門1丁目2-16
銀座線
「虎ノ門」駅 徒歩2分お問い合わせContact
- 1必要項目の入力
- 2入力内容の確認
- 3お問い合わせ完了