RBM芝パークビル
アクセスAccess
物件概要Overview
- 建物種別
- 事業用
- 構造
- 鉄骨鉄筋コンクリート(SRC)
- 竣工年月
- 1984年12月
- 建物面積
- --
- 新耐震基準
- --
- 総戸数
- --
- 賃貸戸数
- --
- 地上階数
- 9階
- 地下階数
- --
- 用途地域1
- --
- 用途地域2
- --
- 備考
設備詳細Equipment
- 設備
-
エレベーター
- 24時間使用
- 空調
-
個別空調
- 床仕様
- トイレ
-
男女トイレ別
- セキュリティ
- インターネット
- 店舗
RBM芝パークビルの空室情報Other compartments
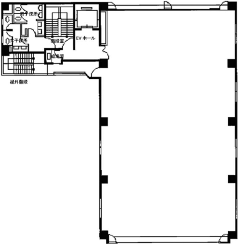
| 平面図 | 所在階 | 坪数 面積 |
賃料 共益費 |
保証金 敷金 |
償却 礼金 |
入居時期 | 詳細 | お気に入り |
|---|---|---|---|---|---|---|---|---|
|
9階 -- |
100.66坪 332.76㎡ |
要相談 49.82万円 |
-- 12ヶ月 |
-- -- |
即時 |
詳細を見る |
アクセスマップAccess Map
ご希望の条件やご予算、移転時期など、
どんなことでもまずはお聞かせください。
物件情報やオフィス・事務所の
ご希望の条件やご予算、移転時期など、
どんなことでもまずはお聞かせください。
どんなことでもまずはお聞かせください。
物件情報やオフィス・事務所の
内見に関するご相談など
お気軽にご相談ください
ご希望の条件やご予算、移転時期など、どんなことでもまずはお聞かせください。
-
物件の資料請求、お問い合わせ
ご希望の条件をお聞かせいただければ、
最適な物件をご提案いたします。
資料請求やご質問など、
まずはお気軽にお問い合わせください。 -
内見希望
気になる物件がございましたら、実際に現地をご覧いただけます。立地や設備、周辺環境など、写真だけでは分からない詳細をご確認ください。
-
オフィスの移転に関する相談
移転時期、予算、規模など、お客様のご要望に合わせたオフィス移転プランをご提案。課題解決から新オフィスの選定まで、サポートいたします。
似た条件の物件Properties
-
天翔オフィス新橋赤レンガ通りANNEX9階
33万円
8.65坪 / 28.62㎡
東京都港区新橋3丁目11-8
山手線
「新橋」駅 徒歩3分
天翔オフィス新橋赤レンガ通り7階
26.4万円
5.19坪 / 17.17㎡
東京都港区新橋3丁目9-10
山手線
「新橋」駅 徒歩3分
新橋パークプレイス2階
164.6万円
99.76坪 / 329.80㎡
東京都港区新橋5丁目27-1
山手線
「新橋」駅 徒歩6分
喜三郎ビル7階
23.31万円
14.13坪 / 46.71㎡
東京都港区新橋3丁目9-9
山手線
「新橋」駅 徒歩3分お問い合わせContact
- 1必要項目の入力
- 2入力内容の確認
- 3お問い合わせ完了