TEL 03-3574-9651

営業時間 09:00~18:00 定休日:土日祝

登亭銀座ビル

TEL 03-3574-9651

営業時間 09:00~18:00 定休日:土日祝

アクセスAccess

住所
東京都中央区銀座3丁目13-2
駅徒歩
日比谷線
東銀座」駅
徒歩2分
有楽町線 徒歩4分

物件概要Overview

建物種別
事業用
構造
鉄骨造
竣工年月
1982年06月
建物面積
--
新耐震基準
--
総戸数
--
賃貸戸数
--
地上階数
8階
地下階数
1階
用途地域1
--
用途地域2
--
備考

設備詳細Equipment

設備
エレベーター
24時間使用
空調
個別空調
床仕様
トイレ
男女トイレ別
セキュリティ
機械警備
インターネット
店舗

登亭銀座ビルの空室情報Other compartments

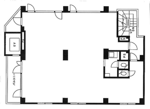
平面図 所在階 坪数
面積
賃料
共益費
保証金
敷金
償却
礼金
入居時期 詳細 お気に入り
5階
--
34.68坪
114.64㎡
62.94万円
--
--
10ヶ月
--
--
即時
詳細を見る

アクセスマップAccess Map

ご希望の条件やご予算、移転時期など、
どんなことでもまずはお聞かせください。

物件情報やオフィス・事務所の
内見に関するご相談など
お気軽にご相談ください

ご希望の条件やご予算、移転時期など、
どんなことでもまずはお聞かせください。
  • 物件の資料請求、お問い合わせ

    ご希望の条件をお聞かせいただければ、
    最適な物件をご提案いたします。
    資料請求やご質問など、
    まずはお気軽にお問い合わせください。

  • 内見希望

    気になる物件がございましたら、実際に現地をご覧いただけます。立地や設備、周辺環境など、写真だけでは分からない詳細をご確認ください。

  • オフィスの移転に関する相談

    移転時期、予算、規模など、お客様のご要望に合わせたオフィス移転プランをご提案。課題解決から新オフィスの選定まで、サポートいたします。

お問い合わせContact

  1. 1必要項目の入力
  2. 2入力内容の確認
  3. 3お問い合わせ完了
要望
物件情報
御社名
お名前
ふりがな
メールアドレス
電話番号
お問い合わせ内容