馬喰町駅の賃貸オフィス・貸事務所
| 平面図 | 所在階 | 坪数 面積 |
賃料 共益費 |
保証金 敷金 |
償却 礼金 |
保証金/敷金 償却/礼金 |
入居時期 | 詳細 | お気に入り |
|---|---|---|---|---|---|---|---|---|---|
|
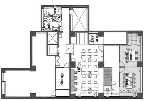
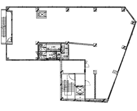
6階 -- |
100.51坪 332.26㎡ |
要相談 -- |
10ヶ月 -- |
20円 -- |
10ヶ月/-- 20円/-- |
即時 |
詳細を見る | |
|
6階(1) -- |
72.28坪 238.94㎡ |
要相談 -- |
10ヶ月 -- |
20円 -- |
10ヶ月/-- 20円/-- |
即時 |
詳細を見る | |
|
6階(2) -- |
17.39坪 57.48㎡ |
要相談 -- |
10ヶ月 -- |
20円 -- |
10ヶ月/-- 20円/-- |
即時 |
詳細を見る |
| 平面図 | 所在階 | 坪数 面積 |
賃料 共益費 |
保証金 敷金 |
償却 礼金 |
保証金/敷金 償却/礼金 |
入居時期 | 詳細 | お気に入り |
|---|---|---|---|---|---|---|---|---|---|
|
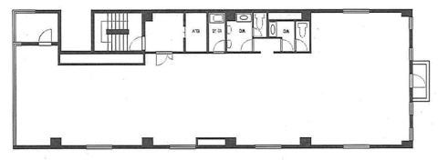
5階 -- |
112.24坪 371.04㎡ |
要相談 -- |
-- -- |
-- -- |
--/-- --/-- |
即時 |
詳細を見る |
| 平面図 | 所在階 | 坪数 面積 |
賃料 共益費 |
保証金 敷金 |
償却 礼金 |
保証金/敷金 償却/礼金 |
入居時期 | 詳細 | お気に入り |
|---|---|---|---|---|---|---|---|---|---|
|
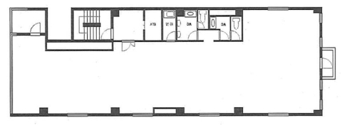
4階 -- |
27.6坪 91.23㎡ |
31.9万円 -- |
9.1ヶ月 -- |
-- -- |
9.1ヶ月/-- --/-- |
即時 |
詳細を見る |
| 平面図 | 所在階 | 坪数 面積 |
賃料 共益費 |
保証金 敷金 |
償却 礼金 |
保証金/敷金 償却/礼金 |
入居時期 | 詳細 | お気に入り |
|---|---|---|---|---|---|---|---|---|---|
|
10階 -- |
19.5坪 64.49㎡ |
30.04万円 6.43万円 |
6ヶ月 -- |
1ヶ月 -- |
6ヶ月/-- 1ヶ月/-- |
即時 |
詳細を見る |
| 平面図 | 所在階 | 坪数 面積 |
賃料 共益費 |
保証金 敷金 |
償却 礼金 |
保証金/敷金 償却/礼金 |
入居時期 | 詳細 | お気に入り |
|---|---|---|---|---|---|---|---|---|---|
|
5階(503) -- |
40.31坪 133.25㎡ |
88.68万円 -- |
-- -- |
-- -- |
--/-- --/-- |
即時 |
詳細を見る | |
|
6階(601) -- |
97.54坪 322.44㎡ |
214.58万円 -- |
-- -- |
-- -- |
--/-- --/-- |
即時 |
詳細を見る | |
|
7階(701A) -- |
48.82坪 161.38㎡ |
107.4万円 -- |
-- -- |
-- -- |
--/-- --/-- |
即時 |
詳細を見る |
| 平面図 | 所在階 | 坪数 面積 |
賃料 共益費 |
保証金 敷金 |
償却 礼金 |
保証金/敷金 償却/礼金 |
入居時期 | 詳細 | お気に入り |
|---|---|---|---|---|---|---|---|---|---|
|
5階 -- |
68.96坪 227.96㎡ |
要相談 -- |
-- 12ヶ月 |
2ヶ月 -- |
--/12ヶ月 2ヶ月/-- |
予定 2025年10月01日 |
詳細を見る |
| 平面図 | 所在階 | 坪数 面積 |
賃料 共益費 |
保証金 敷金 |
償却 礼金 |
保証金/敷金 償却/礼金 |
入居時期 | 詳細 | お気に入り |
|---|---|---|---|---|---|---|---|---|---|
|
4階 -- |
13.27坪 43.86㎡ |
20.68万円 -- |
5ヶ月 -- |
1ヶ月 -- |
5ヶ月/-- 1ヶ月/-- |
相談 |
詳細を見る |
| 平面図 | 所在階 | 坪数 面積 |
賃料 共益費 |
保証金 敷金 |
償却 礼金 |
保証金/敷金 償却/礼金 |
入居時期 | 詳細 | お気に入り |
|---|---|---|---|---|---|---|---|---|---|
|
1階 -- |
23坪 76.03㎡ |
30.36万円 -- |
-- -- |
2ヶ月 -- |
--/-- 2ヶ月/-- |
即時 |
詳細を見る |
| 平面図 | 所在階 | 坪数 面積 |
賃料 共益費 |
保証金 敷金 |
償却 礼金 |
保証金/敷金 償却/礼金 |
入居時期 | 詳細 | お気に入り |
|---|---|---|---|---|---|---|---|---|---|
|
B1階 -- |
61.07坪 201.88㎡ |
要相談 -- |
-- -- |
-- -- |
--/-- --/-- |
即時 |
詳細を見る |
- 住所
- 東京都中央区東日本橋2丁目22-1
- 駅徒歩
-
総武本線「馬喰町」駅 徒歩3分
- 施工年月
- 2021年04月
- 階数
- ~8F
- 構造
- 鉄骨造
- 坪数/面積
- 84.27坪 / 278.57㎡
| 平面図 | 所在階 | 坪数 面積 |
賃料 共益費 |
保証金 敷金 |
償却 礼金 |
保証金/敷金 償却/礼金 |
入居時期 | 詳細 | お気に入り |
|---|---|---|---|---|---|---|---|---|---|
|
3階 -- |
84.27坪 278.57㎡ |
要相談 -- |
-- 12ヶ月 |
-- -- |
--/12ヶ月 --/-- |
予定 2026年01月08日 |
詳細を見る |
| 平面図 | 所在階 | 坪数 面積 |
賃料 共益費 |
保証金 敷金 |
償却 礼金 |
保証金/敷金 償却/礼金 |
入居時期 | 詳細 | お気に入り |
|---|---|---|---|---|---|---|---|---|---|
|
7階 -- |
65.24坪 215.66㎡ |
68.17万円 25.11万円 |
-- 10ヶ月 |
-- -- |
--/10ヶ月 --/-- |
即時 |
詳細を見る |
| 平面図 | 所在階 | 坪数 面積 |
賃料 共益費 |
保証金 敷金 |
償却 礼金 |
保証金/敷金 償却/礼金 |
入居時期 | 詳細 | お気に入り |
|---|---|---|---|---|---|---|---|---|---|
|
6階 -- |
66.86坪 221.02㎡ |
121.35万円 11.03万円 |
-- 6ヶ月 |
-- -- |
--/6ヶ月 --/-- |
予定 2025年12月01日 |
詳細を見る |
| 平面図 | 所在階 | 坪数 面積 |
賃料 共益費 |
保証金 敷金 |
償却 礼金 |
保証金/敷金 償却/礼金 |
入居時期 | 詳細 | お気に入り |
|---|---|---|---|---|---|---|---|---|---|
|
8階 -- |
88.96坪 294.08㎡ |
要相談 -- |
-- 12ヶ月 |
-- -- |
--/12ヶ月 --/-- |
予定 2026年01月01日 |
詳細を見る |
| 平面図 | 所在階 | 坪数 面積 |
賃料 共益費 |
保証金 敷金 |
償却 礼金 |
保証金/敷金 償却/礼金 |
入居時期 | 詳細 | お気に入り |
|---|---|---|---|---|---|---|---|---|---|
|
2階 -- |
93.96坪 310.61㎡ |
要相談 -- |
-- 12ヶ月 |
-- -- |
--/12ヶ月 --/-- |
予定 2024年12月01日 |
詳細を見る |
| 平面図 | 所在階 | 坪数 面積 |
賃料 共益費 |
保証金 敷金 |
償却 礼金 |
保証金/敷金 償却/礼金 |
入居時期 | 詳細 | お気に入り |
|---|---|---|---|---|---|---|---|---|---|
|
3階(301) -- |
53.09坪 175.5㎡ |
64.24万円 11.68万円 |
4.4ヶ月 -- |
1ヶ月 1ヶ月 |
4.4ヶ月/-- 1ヶ月/1ヶ月 |
相談 |
詳細を見る |
| 平面図 | 所在階 | 坪数 面積 |
賃料 共益費 |
保証金 敷金 |
償却 礼金 |
保証金/敷金 償却/礼金 |
入居時期 | 詳細 | お気に入り |
|---|---|---|---|---|---|---|---|---|---|
|
9階 -- |
53.73坪 177.61㎡ |
要相談 -- |
-- 12ヶ月 |
-- -- |
--/12ヶ月 --/-- |
予定 2024年08月15日 |
詳細を見る |
| 平面図 | 所在階 | 坪数 面積 |
賃料 共益費 |
保証金 敷金 |
償却 礼金 |
保証金/敷金 償却/礼金 |
入居時期 | 詳細 | お気に入り |
|---|---|---|---|---|---|---|---|---|---|
|
4階 -- |
62.27坪 205.85㎡ |
75.34万円 13.69万円 |
-- 6ヶ月 |
-- -- |
--/6ヶ月 --/-- |
即時 |
詳細を見る |
| 平面図 | 所在階 | 坪数 面積 |
賃料 共益費 |
保証金 敷金 |
償却 礼金 |
保証金/敷金 償却/礼金 |
入居時期 | 詳細 | お気に入り |
|---|---|---|---|---|---|---|---|---|---|
|
3階 -- |
70.51坪 233.09㎡ |
要相談 31.02万円 |
-- 12ヶ月 |
-- -- |
--/12ヶ月 --/-- |
予定 2024年08月01日 |
詳細を見る | |
|
7階 -- |
72坪 238.01㎡ |
要相談 31.68万円 |
-- 12ヶ月 |
-- -- |
--/12ヶ月 --/-- |
予定 2024年09月20日 |
詳細を見る | |
|
8階 -- |
72坪 238.01㎡ |
要相談 31.68万円 |
-- 12ヶ月 |
-- -- |
--/12ヶ月 --/-- |
予定 2024年09月20日 |
詳細を見る |
| 平面図 | 所在階 | 坪数 面積 |
賃料 共益費 |
保証金 敷金 |
償却 礼金 |
保証金/敷金 償却/礼金 |
入居時期 | 詳細 | お気に入り |
|---|---|---|---|---|---|---|---|---|---|
|
1階-3階 -- |
82.37坪 272.29㎡ |
165万円 -- |
-- 16.7ヶ月 |
2ヶ月 -- |
--/16.7ヶ月 2ヶ月/-- |
即時 |
詳細を見る |
| 平面図 | 所在階 | 坪数 面積 |
賃料 共益費 |
保証金 敷金 |
償却 礼金 |
保証金/敷金 償却/礼金 |
入居時期 | 詳細 | お気に入り |
|---|---|---|---|---|---|---|---|---|---|
|
5階 -- |
95.46坪 315.57㎡ |
要相談 -- |
-- 8ヶ月 |
-- -- |
--/8ヶ月 --/-- |
即時 |
詳細を見る |
| 平面図 | 所在階 | 坪数 面積 |
賃料 共益費 |
保証金 敷金 |
償却 礼金 |
保証金/敷金 償却/礼金 |
入居時期 | 詳細 | お気に入り |
|---|---|---|---|---|---|---|---|---|---|
|
3階 -- |
114.04坪 376.99㎡ |
要相談 -- |
-- 12ヶ月 |
-- -- |
--/12ヶ月 --/-- |
予定 2024年09月01日 |
詳細を見る | |
|
6階 -- |
114.04坪 376.99㎡ |
要相談 -- |
-- 12ヶ月 |
-- -- |
--/12ヶ月 --/-- |
予定 2024年10月01日 |
詳細を見る |
| 平面図 | 所在階 | 坪数 面積 |
賃料 共益費 |
保証金 敷金 |
償却 礼金 |
保証金/敷金 償却/礼金 |
入居時期 | 詳細 | お気に入り |
|---|---|---|---|---|---|---|---|---|---|
|
3階 -- |
168.99坪 558.64㎡ |
要相談 79.93万円 |
-- 12ヶ月 |
-- -- |
--/12ヶ月 --/-- |
予定 2024年09月上旬 |
詳細を見る |
| 平面図 | 所在階 | 坪数 面積 |
賃料 共益費 |
保証金 敷金 |
償却 礼金 |
保証金/敷金 償却/礼金 |
入居時期 | 詳細 | お気に入り |
|---|---|---|---|---|---|---|---|---|---|
|
1階 -- |
30.45坪 100.66㎡ |
73.68万円 -- |
10ヶ月 -- |
-- -- |
10ヶ月/-- --/-- |
即時 |
詳細を見る |





















