代田橋駅の賃貸オフィス・貸事務所
| 平面図 | 所在階 | 坪数 面積 |
賃料 共益費 |
保証金 敷金 |
償却 礼金 |
保証金/敷金 償却/礼金 |
入居時期 | 詳細 | お気に入り |
|---|---|---|---|---|---|---|---|---|---|
|
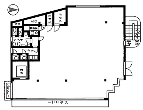
3階 -- |
52.31坪 172.92㎡ |
55万円 -- |
-- 6ヶ月 |
-- 2ヶ月 |
--/6ヶ月 --/2ヶ月 |
即時 |
詳細を見る |
| 平面図 | 所在階 | 坪数 面積 |
賃料 共益費 |
保証金 敷金 |
償却 礼金 |
保証金/敷金 償却/礼金 |
入居時期 | 詳細 | お気に入り |
|---|---|---|---|---|---|---|---|---|---|
|
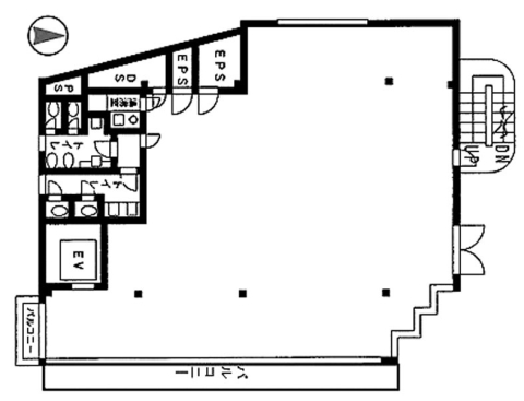
3階 -- |
149.58坪 494.47㎡ |
要相談 57.58万円 |
-- 8ヶ月 |
-- -- |
--/8ヶ月 --/-- |
即時 |
詳細を見る | |
|
4階 -- |
149.58坪 494.47㎡ |
要相談 57.58万円 |
-- 8ヶ月 |
-- -- |
--/8ヶ月 --/-- |
即時 |
詳細を見る | |
|
8階 -- |
108.64坪 359.14㎡ |
要相談 41.82万円 |
-- 8ヶ月 |
-- -- |
--/8ヶ月 --/-- |
即時 |
詳細を見る | |
|
9階 -- |
108.64坪 359.14㎡ |
要相談 41.82万円 |
-- 8ヶ月 |
-- -- |
--/8ヶ月 --/-- |
即時 |
詳細を見る |

