外苑前駅の賃貸オフィス・貸事務所
- 住所
- 東京都港区北青山2丁目11-3
- 駅徒歩
-
東京メトロ銀座線「外苑前」駅 徒歩4分
- 施工年月
- 1966年09月
- 階数
- B1F~6F
- 構造
- 鉄筋コンクリート(RC)
- 坪数/面積
- 116.72坪 / 385.85㎡
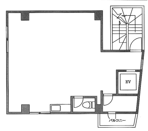
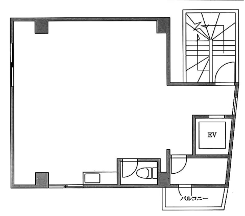
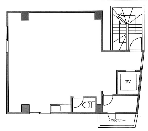
A-PLACE青山
- 住所
- 東京都港区北青山2丁目11-3
- 駅徒歩
-
東京メトロ銀座線「外苑前」駅 徒歩4分
- 施工年月
- 1966年09月
- 階数
- B1F~6F
- 構造
- 鉄筋コンクリート(RC)
- 坪数/面積
-
116.72坪
385.85㎡
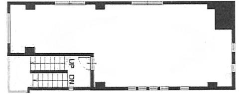
| 平面図 | 所在階 | 坪数 面積 |
賃料 共益費 |
保証金 敷金 |
償却 礼金 |
保証金/敷金 償却/礼金 |
入居時期 | 詳細 | お気に入り |
|---|---|---|---|---|---|---|---|---|---|
|
4階(A) -- |
116.72坪 385.85㎡ |
要相談 -- |
-- 12ヶ月 |
-- -- |
--/12ヶ月 --/-- |
予定 2024年10月01日 |
詳細を見る |
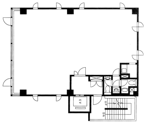
| 平面図 | 所在階 | 坪数 面積 |
賃料 共益費 |
保証金 敷金 |
償却 礼金 |
保証金/敷金 償却/礼金 |
入居時期 | 詳細 | お気に入り |
|---|---|---|---|---|---|---|---|---|---|
|
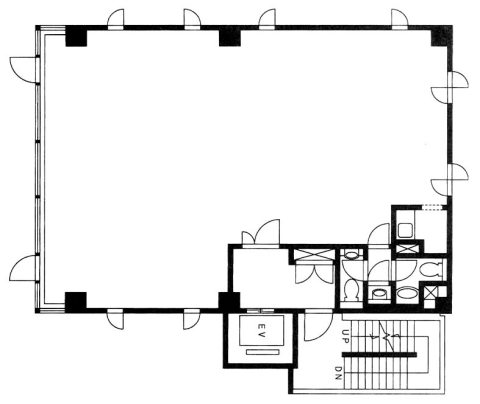
4階 -- |
55.58坪 183.73㎡ |
134.5万円 18.34万円 |
12ヶ月 -- |
-- -- |
12ヶ月/-- --/-- |
即時 |
詳細を見る |
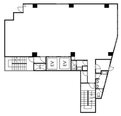
| 平面図 | 所在階 | 坪数 面積 |
賃料 共益費 |
保証金 敷金 |
償却 礼金 |
保証金/敷金 償却/礼金 |
入居時期 | 詳細 | お気に入り |
|---|---|---|---|---|---|---|---|---|---|
|
3階 -- |
52.93坪 175㎡ |
174.7万円 20.38万円 |
-- 12ヶ月 |
-- 20ヶ月 |
--/12ヶ月 --/20ヶ月 |
予定 2024年12月上旬 |
詳細を見る |
- 住所
- 東京都港区南青山3丁目2-7
- 駅徒歩
-
東京メトロ銀座線「外苑前」駅 徒歩5分
- 施工年月
- 1966年11月
- 階数
- ~7F
- 構造
- 鉄筋コンクリート(RC)
- 坪数/面積
- 20.13坪 / 66.54㎡
ブラック青山
- 住所
- 東京都港区南青山3丁目2-7
- 駅徒歩
-
東京メトロ銀座線「外苑前」駅 徒歩5分
- 施工年月
- 1966年11月
- 階数
- ~7F
- 構造
- 鉄筋コンクリート(RC)
- 坪数/面積
-
20.13坪
66.54㎡
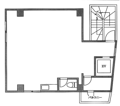
| 平面図 | 所在階 | 坪数 面積 |
賃料 共益費 |
保証金 敷金 |
償却 礼金 |
保証金/敷金 償却/礼金 |
入居時期 | 詳細 | お気に入り |
|---|---|---|---|---|---|---|---|---|---|
|
4階 -- |
20.13坪 66.54㎡ |
49.5万円 3.3万円 |
-- 4ヶ月 |
-- -- |
--/4ヶ月 --/-- |
相談 |
詳細を見る | |
|
5階 -- |
20.13坪 66.54㎡ |
49.5万円 3.3万円 |
-- 4ヶ月 |
-- -- |
--/4ヶ月 --/-- |
即時 |
詳細を見る |
| 平面図 | 所在階 | 坪数 面積 |
賃料 共益費 |
保証金 敷金 |
償却 礼金 |
保証金/敷金 償却/礼金 |
入居時期 | 詳細 | お気に入り |
|---|---|---|---|---|---|---|---|---|---|
|
2階(201) -- |
25.41坪 84㎡ |
39.13万円 6.98万円 |
-- 6ヶ月 |
-- -- |
--/6ヶ月 --/-- |
即時 |
詳細を見る |
- 住所
- 東京都港区南青山2丁目22-19
- 駅徒歩
-
東京メトロ銀座線「外苑前」駅 徒歩7分
- 施工年月
- 1978年09月
- 階数
- B1F~10F
- 構造
- 鉄骨鉄筋コンクリート(SRC)
- 坪数/面積
- 30.55坪 / 100.99㎡
アドバンテック南青山ビル
- 住所
- 東京都港区南青山2丁目22-19
- 駅徒歩
-
東京メトロ銀座線「外苑前」駅 徒歩7分
- 施工年月
- 1978年09月
- 階数
- B1F~10F
- 構造
- 鉄骨鉄筋コンクリート(SRC)
- 坪数/面積
-
30.55坪
100.99㎡
| 平面図 | 所在階 | 坪数 面積 |
賃料 共益費 |
保証金 敷金 |
償却 礼金 |
保証金/敷金 償却/礼金 |
入居時期 | 詳細 | お気に入り |
|---|---|---|---|---|---|---|---|---|---|
|
3階 -- |
30.55坪 100.99㎡ |
60.48万円 -- |
-- 6ヶ月 |
-- -- |
--/6ヶ月 --/-- |
予定 2026年01月上旬 |
詳細を見る |
| 平面図 | 所在階 | 坪数 面積 |
賃料 共益費 |
保証金 敷金 |
償却 礼金 |
保証金/敷金 償却/礼金 |
入居時期 | 詳細 | お気に入り |
|---|---|---|---|---|---|---|---|---|---|
|
8階 -- |
91.69坪 303.1㎡ |
要相談 -- |
-- -- |
-- -- |
--/-- --/-- |
2026年04月01日 | 詳細を見る |
- 住所
- 東京都港区北青山2丁目7-28
- 駅徒歩
-
東京メトロ銀座線「外苑前」駅 徒歩2分
- 施工年月
- 1992年05月
- 階数
- B2F~10F
- 構造
- 鉄筋コンクリート(RC)
- 坪数/面積
- 88.54坪 / 292.69㎡
青山NAビル
- 住所
- 東京都港区北青山2丁目7-28
- 駅徒歩
-
東京メトロ銀座線「外苑前」駅 徒歩2分
- 施工年月
- 1992年05月
- 階数
- B2F~10F
- 構造
- 鉄筋コンクリート(RC)
- 坪数/面積
-
88.54坪
292.69㎡
| 平面図 | 所在階 | 坪数 面積 |
賃料 共益費 |
保証金 敷金 |
償却 礼金 |
保証金/敷金 償却/礼金 |
入居時期 | 詳細 | お気に入り |
|---|---|---|---|---|---|---|---|---|---|
|
2階 -- |
88.54坪 292.69㎡ |
233.74万円 29.21万円 |
6ヶ月 -- |
-- -- |
6ヶ月/-- --/-- |
即時 |
詳細を見る |
- 住所
- 東京都港区南青山2丁目27-8
- 駅徒歩
-
東京メトロ銀座線「外苑前」駅 徒歩3分
- 施工年月
- 2000年05月
- 階数
- ~4F
- 構造
- 鉄骨造
- 坪数/面積
- 35.78坪 / 118.28㎡
| 平面図 | 所在階 | 坪数 面積 |
賃料 共益費 |
保証金 敷金 |
償却 礼金 |
保証金/敷金 償却/礼金 |
入居時期 | 詳細 | お気に入り |
|---|---|---|---|---|---|---|---|---|---|
|
4階 -- |
35.78坪 118.28㎡ |
62.97万円 11.8万円 |
-- -- |
-- -- |
--/-- --/-- |
即時 |
詳細を見る |
| 平面図 | 所在階 | 坪数 面積 |
賃料 共益費 |
保証金 敷金 |
償却 礼金 |
保証金/敷金 償却/礼金 |
入居時期 | 詳細 | お気に入り |
|---|---|---|---|---|---|---|---|---|---|
|
4階 -- |
10.07坪 33.28㎡ |
42.09万円 4.2万円 |
-- 5ヶ月 |
-- -- |
--/5ヶ月 --/-- |
即時 |
詳細を見る |
- 住所
- 東京都港区北青山2丁目7-11
- 駅徒歩
-
東京メトロ銀座線「外苑前」駅 徒歩1分
- 施工年月
- 1994年08月
- 階数
- B1F~9F
- 構造
- 鉄骨造
- 坪数/面積
- 21.73坪 / 71.83㎡
| 平面図 | 所在階 | 坪数 面積 |
賃料 共益費 |
保証金 敷金 |
償却 礼金 |
保証金/敷金 償却/礼金 |
入居時期 | 詳細 | お気に入り |
|---|---|---|---|---|---|---|---|---|---|
|
4階 -- |
21.73坪 71.83㎡ |
45.41万円 8.36万円 |
8ヶ月 -- |
2ヶ月 -- |
8ヶ月/-- 2ヶ月/-- |
予定 2025年07月01日 |
詳細を見る |
| 平面図 | 所在階 | 坪数 面積 |
賃料 共益費 |
保証金 敷金 |
償却 礼金 |
保証金/敷金 償却/礼金 |
入居時期 | 詳細 | お気に入り |
|---|---|---|---|---|---|---|---|---|---|
|
8階 -- |
67.1坪 221.81㎡ |
162.38万円 22.14万円 |
-- -- |
-- -- |
--/-- --/-- |
即時 |
詳細を見る |
- 住所
- 東京都港区南青山4丁目1-10
- 駅徒歩
-
東京メトロ銀座線「外苑前」駅 徒歩6分
- 施工年月
- 2024年03月
- 階数
- ~11F
- 構造
- 鉄筋コンクリート(RC)
- 坪数/面積
- 95.44坪 / 315.5㎡
オーパスレジデンス南青山
- 住所
- 東京都港区南青山4丁目1-10
- 駅徒歩
-
東京メトロ銀座線「外苑前」駅 徒歩6分
- 施工年月
- 2024年03月
- 階数
- ~11F
- 構造
- 鉄筋コンクリート(RC)
- 坪数/面積
-
95.44坪
315.5㎡
| 平面図 | 所在階 | 坪数 面積 |
賃料 共益費 |
保証金 敷金 |
償却 礼金 |
保証金/敷金 償却/礼金 |
入居時期 | 詳細 | お気に入り |
|---|---|---|---|---|---|---|---|---|---|
|
1階 -- |
95.44坪 315.5㎡ |
314.95万円 -- |
-- 12ヶ月 |
-- -- |
--/12ヶ月 --/-- |
即時 |
詳細を見る |
| 平面図 | 所在階 | 坪数 面積 |
賃料 共益費 |
保証金 敷金 |
償却 礼金 |
保証金/敷金 償却/礼金 |
入居時期 | 詳細 | お気に入り |
|---|---|---|---|---|---|---|---|---|---|
|
2階 -- |
18.16坪 60.03㎡ |
45.94万円 3.99万円 |
6ヶ月 -- |
2ヶ月 -- |
6ヶ月/-- 2ヶ月/-- |
予定 2025年05月01日 |
詳細を見る |
- 住所
- 東京都港区北青山2丁目12-15
- 駅徒歩
-
東京メトロ銀座線「外苑前」駅 徒歩1分
- 施工年月
- 2014年09月
- 階数
- B1F~10F
- 構造
- 鉄筋コンクリート(RC)
- 坪数/面積
- 26坪 / 85.95㎡
G-FRONT AOYAMA
- 住所
- 東京都港区北青山2丁目12-15
- 駅徒歩
-
東京メトロ銀座線「外苑前」駅 徒歩1分
- 施工年月
- 2014年09月
- 階数
- B1F~10F
- 構造
- 鉄筋コンクリート(RC)
- 坪数/面積
-
26坪
85.95㎡
| 平面図 | 所在階 | 坪数 面積 |
賃料 共益費 |
保証金 敷金 |
償却 礼金 |
保証金/敷金 償却/礼金 |
入居時期 | 詳細 | お気に入り |
|---|---|---|---|---|---|---|---|---|---|
|
4階 -- |
26坪 85.95㎡ |
70.07万円 4.29万円 |
-- 8ヶ月 |
-- 1ヶ月 |
--/8ヶ月 --/1ヶ月 |
即時 |
詳細を見る |
- 住所
- 東京都港区北青山2丁目7-26
- 駅徒歩
-
東京メトロ銀座線「外苑前」駅 徒歩2分
- 施工年月
- 1987年07月
- 階数
- B1F~10F
- 構造
- 鉄骨鉄筋コンクリート(SRC)
- 坪数/面積
- 51.6坪 / 170.57㎡
Landwork青山ビル
- 住所
- 東京都港区北青山2丁目7-26
- 駅徒歩
-
東京メトロ銀座線「外苑前」駅 徒歩2分
- 施工年月
- 1987年07月
- 階数
- B1F~10F
- 構造
- 鉄骨鉄筋コンクリート(SRC)
- 坪数/面積
-
51.6坪
170.57㎡
| 平面図 | 所在階 | 坪数 面積 |
賃料 共益費 |
保証金 敷金 |
償却 礼金 |
保証金/敷金 償却/礼金 |
入居時期 | 詳細 | お気に入り |
|---|---|---|---|---|---|---|---|---|---|
|
10階 -- |
51.6坪 170.57㎡ |
154.8万円 -- |
10ヶ月 -- |
1ヶ月 -- |
10ヶ月/-- 1ヶ月/-- |
予定 2026年01月上旬 |
詳細を見る |
| 平面図 | 所在階 | 坪数 面積 |
賃料 共益費 |
保証金 敷金 |
償却 礼金 |
保証金/敷金 償却/礼金 |
入居時期 | 詳細 | お気に入り |
|---|---|---|---|---|---|---|---|---|---|
|
15階 -- |
117.58坪 388.69㎡ |
要相談 -- |
-- -- |
-- -- |
--/-- --/-- |
即時 |
詳細を見る |
| 平面図 | 所在階 | 坪数 面積 |
賃料 共益費 |
保証金 敷金 |
償却 礼金 |
保証金/敷金 償却/礼金 |
入居時期 | 詳細 | お気に入り |
|---|---|---|---|---|---|---|---|---|---|
|
3階(A) -- |
262.88坪 869.02㎡ |
要相談 -- |
-- 12ヶ月 |
-- -- |
--/12ヶ月 --/-- |
相談 |
詳細を見る | |
|
2階(A) -- |
276.2坪 913.05㎡ |
要相談 -- |
-- 12ヶ月 |
-- -- |
--/12ヶ月 --/-- |
相談 |
詳細を見る |
| 平面図 | 所在階 | 坪数 面積 |
賃料 共益費 |
保証金 敷金 |
償却 礼金 |
保証金/敷金 償却/礼金 |
入居時期 | 詳細 | お気に入り |
|---|---|---|---|---|---|---|---|---|---|
|
B1階 -- |
13.99坪 46.28㎡ |
41.8万円 -- |
10ヶ月 -- |
2ヶ月 -- |
10ヶ月/-- 2ヶ月/-- |
相談 |
詳細を見る |
| 平面図 | 所在階 | 坪数 面積 |
賃料 共益費 |
保証金 敷金 |
償却 礼金 |
保証金/敷金 償却/礼金 |
入居時期 | 詳細 | お気に入り |
|---|---|---|---|---|---|---|---|---|---|
|
2階 -- |
76.9坪 254.21㎡ |
137.5万円 -- |
-- 3ヶ月 |
-- 2ヶ月 |
--/3ヶ月 --/2ヶ月 |
即時 |
詳細を見る |
- 住所
- 東京都渋谷区神宮前2丁目2-22
- 駅徒歩
-
東京メトロ銀座線「外苑前」駅 徒歩5分
- 施工年月
- 1991年04月
- 階数
- B1F~5F
- 構造
- 鉄骨鉄筋コンクリート(SRC)
- 坪数/面積
- 163.45坪 / 540.33㎡
青山熊野神社ビル
- 住所
- 東京都渋谷区神宮前2丁目2-22
- 駅徒歩
-
東京メトロ銀座線「外苑前」駅 徒歩5分
- 施工年月
- 1991年04月
- 階数
- B1F~5F
- 構造
- 鉄骨鉄筋コンクリート(SRC)
- 坪数/面積
-
163.45坪
540.33㎡
| 平面図 | 所在階 | 坪数 面積 |
賃料 共益費 |
保証金 敷金 |
償却 礼金 |
保証金/敷金 償却/礼金 |
入居時期 | 詳細 | お気に入り |
|---|---|---|---|---|---|---|---|---|---|
|
B1-1階 -- |
163.45坪 540.33㎡ |
318.98万円 -- |
-- 10ヶ月 |
2ヶ月 -- |
--/10ヶ月 2ヶ月/-- |
即時 |
詳細を見る |
| 平面図 | 所在階 | 坪数 面積 |
賃料 共益費 |
保証金 敷金 |
償却 礼金 |
保証金/敷金 償却/礼金 |
入居時期 | 詳細 | お気に入り |
|---|---|---|---|---|---|---|---|---|---|
|
3階 -- |
35.51坪 117.38㎡ |
93.5万円 -- |
-- 12ヶ月 |
-- -- |
--/12ヶ月 --/-- |
即時 |
詳細を見る |
| 平面図 | 所在階 | 坪数 面積 |
賃料 共益費 |
保証金 敷金 |
償却 礼金 |
保証金/敷金 償却/礼金 |
入居時期 | 詳細 | お気に入り |
|---|---|---|---|---|---|---|---|---|---|
|
3階 -- |
51.42坪 169.98㎡ |
115.95万円 16.96万円 |
10ヶ月 -- |
-- -- |
10ヶ月/-- --/-- |
即時 |
詳細を見る |
| 平面図 | 所在階 | 坪数 面積 |
賃料 共益費 |
保証金 敷金 |
償却 礼金 |
保証金/敷金 償却/礼金 |
入居時期 | 詳細 | お気に入り |
|---|---|---|---|---|---|---|---|---|---|
|
5階 -- |
52.95坪 175.04㎡ |
要相談 -- |
-- 10ヶ月 |
1ヶ月 -- |
--/10ヶ月 1ヶ月/-- |
2023年01月01日 | 詳細を見る | |
|
6階 -- |
52.95坪 175.04㎡ |
要相談 -- |
-- 10ヶ月 |
1ヶ月 -- |
--/10ヶ月 1ヶ月/-- |
2023年01月01日 | 詳細を見る | |
|
8階 -- |
52.95坪 175.04㎡ |
203.85万円 -- |
-- 10ヶ月 |
1ヶ月 -- |
--/10ヶ月 1ヶ月/-- |
即時 |
詳細を見る | |
|
9階 -- |
52.95坪 175.04㎡ |
203.85万円 -- |
-- 10ヶ月 |
1ヶ月 -- |
--/10ヶ月 1ヶ月/-- |
即時 |
詳細を見る | |
|
10階 -- |
52.95坪 175.04㎡ |
203.85万円 -- |
-- 10ヶ月 |
1ヶ月 -- |
--/10ヶ月 1ヶ月/-- |
即時 |
詳細を見る |













