北参道駅の賃貸オフィス・貸事務所
- 住所
- 東京都渋谷区千駄ヶ谷3丁目39-1
- 駅徒歩
-
東京メトロ副都心線「北参道」駅 徒歩1分
- 施工年月
- 2018年09月
- 階数
- ~9F
- 構造
- 鉄骨造
- 坪数/面積
- 53.96坪 / 178.38㎡
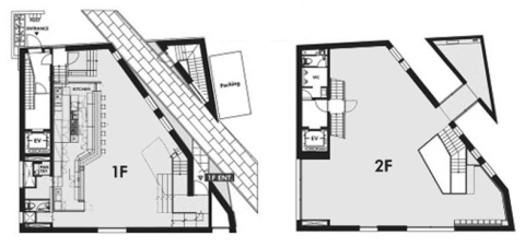
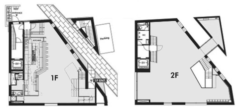
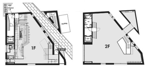
北参道サンイーストテラス
- 住所
- 東京都渋谷区千駄ヶ谷3丁目39-1
- 駅徒歩
-
東京メトロ副都心線「北参道」駅 徒歩1分
- 施工年月
- 2018年09月
- 階数
- ~9F
- 構造
- 鉄骨造
- 坪数/面積
-
53.96坪
178.38㎡
| 平面図 | 所在階 | 坪数 面積 |
賃料 共益費 |
保証金 敷金 |
償却 礼金 |
保証金/敷金 償却/礼金 |
入居時期 | 詳細 | お気に入り |
|---|---|---|---|---|---|---|---|---|---|
|
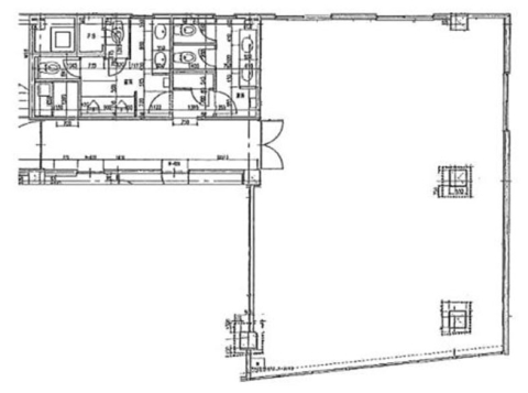
2階 -- |
53.96坪 178.38㎡ |
142.45万円 -- |
-- 6ヶ月 |
-- 1ヶ月 |
--/6ヶ月 --/1ヶ月 |
即時 |
詳細を見る |
| 平面図 | 所在階 | 坪数 面積 |
賃料 共益費 |
保証金 敷金 |
償却 礼金 |
保証金/敷金 償却/礼金 |
入居時期 | 詳細 | お気に入り |
|---|---|---|---|---|---|---|---|---|---|
|
1階 -- |
52.49坪 173.52㎡ |
要相談 -- |
-- 12ヶ月 |
-- -- |
--/12ヶ月 --/-- |
即時 |
詳細を見る | |
|
5階 -- |
126.84坪 419.3㎡ |
要相談 -- |
-- 12ヶ月 |
-- -- |
--/12ヶ月 --/-- |
即時 |
詳細を見る | |
|
6階 -- |
112.76坪 372.76㎡ |
要相談 -- |
-- 12ヶ月 |
-- -- |
--/12ヶ月 --/-- |
即時 |
詳細を見る | |
|
10階 -- |
112.33坪 371.33㎡ |
要相談 -- |
-- 12ヶ月 |
-- -- |
--/12ヶ月 --/-- |
即時 |
詳細を見る |
| 平面図 | 所在階 | 坪数 面積 |
賃料 共益費 |
保証金 敷金 |
償却 礼金 |
保証金/敷金 償却/礼金 |
入居時期 | 詳細 | お気に入り |
|---|---|---|---|---|---|---|---|---|---|
|
1階(102) -- |
52.92坪 174.94㎡ |
81.49万円 5.82万円 |
-- -- |
要相談 -- |
--/-- 要相談/-- |
予定 2025年04月01日 |
詳細を見る |
| 平面図 | 所在階 | 坪数 面積 |
賃料 共益費 |
保証金 敷金 |
償却 礼金 |
保証金/敷金 償却/礼金 |
入居時期 | 詳細 | お気に入り |
|---|---|---|---|---|---|---|---|---|---|
|
1階 -- |
55.58坪 183.73㎡ |
要相談 -- |
-- -- |
1ヶ月 1ヶ月 |
--/-- 1ヶ月/1ヶ月 |
即時 |
詳細を見る |
| 平面図 | 所在階 | 坪数 面積 |
賃料 共益費 |
保証金 敷金 |
償却 礼金 |
保証金/敷金 償却/礼金 |
入居時期 | 詳細 | お気に入り |
|---|---|---|---|---|---|---|---|---|---|
|
B1階(B) -- |
56.06坪 185.32㎡ |
137.5万円 -- |
8ヶ月 -- |
1ヶ月 -- |
8ヶ月/-- 1ヶ月/-- |
即時 |
詳細を見る | |
|
1階(B) -- |
48.54坪 160.46㎡ |
119.9万円 -- |
8ヶ月 -- |
1ヶ月 -- |
8ヶ月/-- 1ヶ月/-- |
即時 |
詳細を見る |
| 平面図 | 所在階 | 坪数 面積 |
賃料 共益費 |
保証金 敷金 |
償却 礼金 |
保証金/敷金 償却/礼金 |
入居時期 | 詳細 | お気に入り |
|---|---|---|---|---|---|---|---|---|---|
|
3階 -- |
57.25坪 189.25㎡ |
125.95万円 18.89万円 |
-- 6ヶ月 |
-- -- |
--/6ヶ月 --/-- |
予定 2025年01月上旬 |
詳細を見る |
| 平面図 | 所在階 | 坪数 面積 |
賃料 共益費 |
保証金 敷金 |
償却 礼金 |
保証金/敷金 償却/礼金 |
入居時期 | 詳細 | お気に入り |
|---|---|---|---|---|---|---|---|---|---|
|
2階(207) -- |
10.22坪 33.8㎡ |
13.2万円 -- |
-- 2ヶ月 |
-- 1ヶ月 |
--/2ヶ月 --/1ヶ月 |
即時 |
詳細を見る |
| 平面図 | 所在階 | 坪数 面積 |
賃料 共益費 |
保証金 敷金 |
償却 礼金 |
保証金/敷金 償却/礼金 |
入居時期 | 詳細 | お気に入り |
|---|---|---|---|---|---|---|---|---|---|
|
2階(201) -- |
13.72坪 45.36㎡ |
27.16万円 -- |
-- 4ヶ月 |
1ヶ月 -- |
--/4ヶ月 1ヶ月/-- |
2024年11月下旬 | 詳細を見る | |
|
2階(203) -- |
14.93坪 49.35㎡ |
29.56万円 -- |
-- 4ヶ月 |
1ヶ月 -- |
--/4ヶ月 1ヶ月/-- |
2024年11月下旬 | 詳細を見る |
| 平面図 | 所在階 | 坪数 面積 |
賃料 共益費 |
保証金 敷金 |
償却 礼金 |
保証金/敷金 償却/礼金 |
入居時期 | 詳細 | お気に入り |
|---|---|---|---|---|---|---|---|---|---|
|
6階(601) -- |
262.72坪 868.49㎡ |
要相談 -- |
-- -- |
-- -- |
--/-- --/-- |
予定 2026年03月01日 |
詳細を見る |
| 平面図 | 所在階 | 坪数 面積 |
賃料 共益費 |
保証金 敷金 |
償却 礼金 |
保証金/敷金 償却/礼金 |
入居時期 | 詳細 | お気に入り |
|---|---|---|---|---|---|---|---|---|---|
|
1棟 -- |
137.64坪 455.03㎡ |
347.31万円 -- |
-- -- |
-- -- |
--/-- --/-- |
即時 |
詳細を見る |
| 平面図 | 所在階 | 坪数 面積 |
賃料 共益費 |
保証金 敷金 |
償却 礼金 |
保証金/敷金 償却/礼金 |
入居時期 | 詳細 | お気に入り |
|---|---|---|---|---|---|---|---|---|---|
|
B1階 -- |
62.88坪 207.86㎡ |
187万円 5.5万円 |
-- 4ヶ月 |
要相談 -- |
--/4ヶ月 要相談/-- |
相談 |
詳細を見る | |
|
B1~2階 -- |
152.9坪 505.45㎡ |
476.3万円 5.5万円 |
-- 6ヶ月 |
要相談 -- |
--/6ヶ月 要相談/-- |
相談 |
詳細を見る | |
|
1~2階 -- |
90.01坪 297.55㎡ |
341万円 5.5万円 |
-- 6ヶ月 |
要相談 -- |
--/6ヶ月 要相談/-- |
相談 |
詳細を見る |
| 平面図 | 所在階 | 坪数 面積 |
賃料 共益費 |
保証金 敷金 |
償却 礼金 |
保証金/敷金 償却/礼金 |
入居時期 | 詳細 | お気に入り |
|---|---|---|---|---|---|---|---|---|---|
|
2階(205) -- |
10.95坪 36.19㎡ |
15.07万円 2.42万円 |
6ヶ月 -- |
-- 2ヶ月 |
6ヶ月/-- --/2ヶ月 |
相談 |
詳細を見る |
| 平面図 | 所在階 | 坪数 面積 |
賃料 共益費 |
保証金 敷金 |
償却 礼金 |
保証金/敷金 償却/礼金 |
入居時期 | 詳細 | お気に入り |
|---|---|---|---|---|---|---|---|---|---|
|
4階(401) -- |
12.75坪 42.14㎡ |
14.85万円 1.54万円 |
3ヶ月 -- |
1ヶ月 1ヶ月 |
3ヶ月/-- 1ヶ月/1ヶ月 |
即時 |
詳細を見る |
| 平面図 | 所在階 | 坪数 面積 |
賃料 共益費 |
保証金 敷金 |
償却 礼金 |
保証金/敷金 償却/礼金 |
入居時期 | 詳細 | お気に入り |
|---|---|---|---|---|---|---|---|---|---|
|
2階 -- |
14.57坪 48.16㎡ |
18.7万円 -- |
-- 3ヶ月 |
-- 1ヶ月 |
--/3ヶ月 --/1ヶ月 |
即時 |
詳細を見る |
| 平面図 | 所在階 | 坪数 面積 |
賃料 共益費 |
保証金 敷金 |
償却 礼金 |
保証金/敷金 償却/礼金 |
入居時期 | 詳細 | お気に入り |
|---|---|---|---|---|---|---|---|---|---|
|
3階 -- |
64.01坪 211.6㎡ |
181.5万円 22万円 |
-- 6ヶ月 |
-- -- |
--/6ヶ月 --/-- |
即時 |
詳細を見る |
| 平面図 | 所在階 | 坪数 面積 |
賃料 共益費 |
保証金 敷金 |
償却 礼金 |
保証金/敷金 償却/礼金 |
入居時期 | 詳細 | お気に入り |
|---|---|---|---|---|---|---|---|---|---|
|
2階 -- |
24.88坪 82.24㎡ |
要相談 5.47万円 |
-- 8ヶ月 |
-- 1ヶ月 |
--/8ヶ月 --/1ヶ月 |
即時 |
詳細を見る |
| 平面図 | 所在階 | 坪数 面積 |
賃料 共益費 |
保証金 敷金 |
償却 礼金 |
保証金/敷金 償却/礼金 |
入居時期 | 詳細 | お気に入り |
|---|---|---|---|---|---|---|---|---|---|
|
6階 -- |
27.28坪 90.18㎡ |
59.4万円 8.8万円 |
-- 8ヶ月 |
-- 1ヶ月 |
--/8ヶ月 --/1ヶ月 |
即時 |
詳細を見る |
| 平面図 | 所在階 | 坪数 面積 |
賃料 共益費 |
保証金 敷金 |
償却 礼金 |
保証金/敷金 償却/礼金 |
入居時期 | 詳細 | お気に入り |
|---|---|---|---|---|---|---|---|---|---|
|
3階 -- |
46.4坪 153.38㎡ |
91.87万円 -- |
10ヶ月 -- |
1ヶ月 -- |
10ヶ月/-- 1ヶ月/-- |
即時 |
詳細を見る |
| 平面図 | 所在階 | 坪数 面積 |
賃料 共益費 |
保証金 敷金 |
償却 礼金 |
保証金/敷金 償却/礼金 |
入居時期 | 詳細 | お気に入り |
|---|---|---|---|---|---|---|---|---|---|
|
2階 -- |
71坪 234.71㎡ |
101.53万円 7.81万円 |
-- 4ヶ月 |
-- 2ヶ月 |
--/4ヶ月 --/2ヶ月 |
即時 |
詳細を見る |
| 平面図 | 所在階 | 坪数 面積 |
賃料 共益費 |
保証金 敷金 |
償却 礼金 |
保証金/敷金 償却/礼金 |
入居時期 | 詳細 | お気に入り |
|---|---|---|---|---|---|---|---|---|---|
|
3階 -- |
114.54坪 378.64㎡ |
要相談 -- |
10ヶ月 -- |
-- -- |
10ヶ月/-- --/-- |
即時 |
詳細を見る |
| 平面図 | 所在階 | 坪数 面積 |
賃料 共益費 |
保証金 敷金 |
償却 礼金 |
保証金/敷金 償却/礼金 |
入居時期 | 詳細 | お気に入り |
|---|---|---|---|---|---|---|---|---|---|
|
5階 -- |
161.51坪 533.91㎡ |
要相談 53.29万円 |
-- -- |
-- -- |
--/-- --/-- |
即時 |
詳細を見る |



















