六本木駅の賃貸オフィス・貸事務所
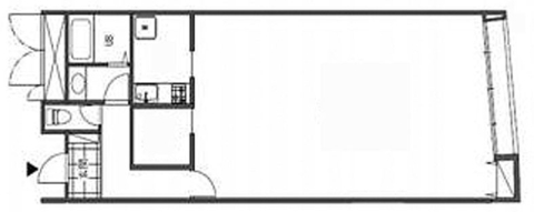
| 平面図 | 所在階 | 坪数 面積 |
賃料 共益費 |
保証金 敷金 |
償却 礼金 |
保証金/敷金 償却/礼金 |
入居時期 | 詳細 | お気に入り |
|---|---|---|---|---|---|---|---|---|---|
|
1階 A |
20.07坪 66.26㎡ |
37.53万円 2.2万円 |
-- 6ヶ月 |
1ヶ月 -- |
--/6ヶ月 1ヶ月/-- |
相談 |
詳細を見る | |
|
1階 B |
46.23坪 152.87㎡ |
86.45万円 5.08万円 |
-- 6ヶ月 |
1ヶ月 -- |
--/6ヶ月 1ヶ月/-- |
予定 2026年07月中旬 |
詳細を見る | |
|
1階B・2階 -- |
117.15坪 387.27㎡ |
219.07万円 12.88万円 |
-- 6ヶ月 |
1ヶ月 -- |
--/6ヶ月 1ヶ月/-- |
予定 2026年07月中旬 |
詳細を見る | |
|
2階 -- |
70.92坪 234.46㎡ |
132.6万円 7.8万円 |
-- 6ヶ月 |
1ヶ月 -- |
--/6ヶ月 1ヶ月/-- |
予定 2026年07月中旬 |
詳細を見る |
| 平面図 | 所在階 | 坪数 面積 |
賃料 共益費 |
保証金 敷金 |
償却 礼金 |
保証金/敷金 償却/礼金 |
入居時期 | 詳細 | お気に入り |
|---|---|---|---|---|---|---|---|---|---|
|
2階 -- |
24.02坪 79.4㎡ |
要相談 10.56万円 |
-- 要相談 |
-- -- |
--/要相談 --/-- |
即時 |
詳細を見る | |
|
3階 -- |
112.1坪 370.57㎡ |
要相談 49.32万円 |
-- 12ヶ月 |
-- -- |
--/12ヶ月 --/-- |
即時 |
詳細を見る |
| 平面図 | 所在階 | 坪数 面積 |
賃料 共益費 |
保証金 敷金 |
償却 礼金 |
保証金/敷金 償却/礼金 |
入居時期 | 詳細 | お気に入り |
|---|---|---|---|---|---|---|---|---|---|
|
3階 -- |
144.74坪 478.51㎡ |
318.45万円 63.69万円 |
-- 12ヶ月 |
-- -- |
--/12ヶ月 --/-- |
2026年01月09日 | 詳細を見る |
| 平面図 | 所在階 | 坪数 面積 |
賃料 共益費 |
保証金 敷金 |
償却 礼金 |
保証金/敷金 償却/礼金 |
入居時期 | 詳細 | お気に入り |
|---|---|---|---|---|---|---|---|---|---|
|
3階 -- |
43.7坪 144.46㎡ |
69.7万円 9.61万円 |
6ヶ月 -- |
1ヶ月 1ヶ月 |
6ヶ月/-- 1ヶ月/1ヶ月 |
即時 |
詳細を見る |
| 平面図 | 所在階 | 坪数 面積 |
賃料 共益費 |
保証金 敷金 |
償却 礼金 |
保証金/敷金 償却/礼金 |
入居時期 | 詳細 | お気に入り |
|---|---|---|---|---|---|---|---|---|---|
|
1階 -- |
24.8坪 81.98㎡ |
60.49万円 -- |
3ヶ月 -- |
-- 1ヶ月 |
3ヶ月/-- --/1ヶ月 |
即時 |
詳細を見る |
| 平面図 | 所在階 | 坪数 面積 |
賃料 共益費 |
保証金 敷金 |
償却 礼金 |
保証金/敷金 償却/礼金 |
入居時期 | 詳細 | お気に入り |
|---|---|---|---|---|---|---|---|---|---|
|
1階 -- |
17.6坪 58.2㎡ |
32.99万円 2.19万円 |
-- 3ヶ月 |
-- -- |
--/3ヶ月 --/-- |
即時 |
詳細を見る |
| 平面図 | 所在階 | 坪数 面積 |
賃料 共益費 |
保証金 敷金 |
償却 礼金 |
保証金/敷金 償却/礼金 |
入居時期 | 詳細 | お気に入り |
|---|---|---|---|---|---|---|---|---|---|
|
6階 -- |
18.17坪 60.09㎡ |
39.99万円 5.99万円 |
8ヶ月 -- |
1ヶ月 -- |
8ヶ月/-- 1ヶ月/-- |
即時 |
詳細を見る |
| 平面図 | 所在階 | 坪数 面積 |
賃料 共益費 |
保証金 敷金 |
償却 礼金 |
保証金/敷金 償却/礼金 |
入居時期 | 詳細 | お気に入り |
|---|---|---|---|---|---|---|---|---|---|
|
4階(A) -- |
124.33坪 411㎡ |
要相談 61.54万円 |
-- 3ヶ月 |
-- 1ヶ月 |
--/3ヶ月 --/1ヶ月 |
即時 |
詳細を見る |
| 平面図 | 所在階 | 坪数 面積 |
賃料 共益費 |
保証金 敷金 |
償却 礼金 |
保証金/敷金 償却/礼金 |
入居時期 | 詳細 | お気に入り |
|---|---|---|---|---|---|---|---|---|---|
|
6階 -- |
24.82坪 82.04㎡ |
54.6万円 -- |
-- 6ヶ月 |
-- 1ヶ月 |
--/6ヶ月 --/1ヶ月 |
即時 |
詳細を見る | |
|
7階 -- |
24.82坪 82.04㎡ |
54.6万円 -- |
-- 6ヶ月 |
-- 1ヶ月 |
--/6ヶ月 --/1ヶ月 |
即時 |
詳細を見る |
| 平面図 | 所在階 | 坪数 面積 |
賃料 共益費 |
保証金 敷金 |
償却 礼金 |
保証金/敷金 償却/礼金 |
入居時期 | 詳細 | お気に入り |
|---|---|---|---|---|---|---|---|---|---|
|
2階(202) -- |
31.91坪 105.48㎡ |
43.87万円 7.02万円 |
4ヶ月 -- |
1ヶ月 -- |
4ヶ月/-- 1ヶ月/-- |
即時 |
詳細を見る |
| 平面図 | 所在階 | 坪数 面積 |
賃料 共益費 |
保証金 敷金 |
償却 礼金 |
保証金/敷金 償却/礼金 |
入居時期 | 詳細 | お気に入り |
|---|---|---|---|---|---|---|---|---|---|
|
5階 -- |
57.08坪 188.72㎡ |
要相談 -- |
-- 10ヶ月 |
-- -- |
--/10ヶ月 --/-- |
即時 |
詳細を見る |
| 平面図 | 所在階 | 坪数 面積 |
賃料 共益費 |
保証金 敷金 |
償却 礼金 |
保証金/敷金 償却/礼金 |
入居時期 | 詳細 | お気に入り |
|---|---|---|---|---|---|---|---|---|---|
|
4階(西) -- |
157.96坪 522.18㎡ |
要相談 -- |
-- 12ヶ月 |
-- -- |
--/12ヶ月 --/-- |
即時 |
詳細を見る |
| 平面図 | 所在階 | 坪数 面積 |
賃料 共益費 |
保証金 敷金 |
償却 礼金 |
保証金/敷金 償却/礼金 |
入居時期 | 詳細 | お気に入り |
|---|---|---|---|---|---|---|---|---|---|
|
2階(201) -- |
13.43坪 44.39㎡ |
23.63万円 -- |
4ヶ月 -- |
-- 1ヶ月 |
4ヶ月/-- --/1ヶ月 |
即時 |
詳細を見る |
| 平面図 | 所在階 | 坪数 面積 |
賃料 共益費 |
保証金 敷金 |
償却 礼金 |
保証金/敷金 償却/礼金 |
入居時期 | 詳細 | お気に入り |
|---|---|---|---|---|---|---|---|---|---|
|
3階(303) -- |
23坪 76.03㎡ |
39.97万円 -- |
-- 2ヶ月 |
1ヶ月 -- |
--/2ヶ月 1ヶ月/-- |
2025年12月01日 | 詳細を見る |
- 住所
- 東京都港区元麻布3丁目1-36
- 駅徒歩
-
東京メトロ日比谷線「六本木」駅 徒歩7分
- 施工年月
- 1989年12月
- 階数
- B1F~5F
- 構造
- 鉄筋コンクリート(RC)
- 坪数/面積
- 25.12坪 / 83.04㎡
つなかわビル
- 住所
- 東京都港区元麻布3丁目1-36
- 駅徒歩
-
東京メトロ日比谷線「六本木」駅 徒歩7分
- 施工年月
- 1989年12月
- 階数
- B1F~5F
- 構造
- 鉄筋コンクリート(RC)
- 坪数/面積
-
25.12坪
83.04㎡
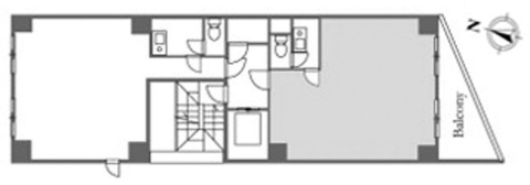
| 平面図 | 所在階 | 坪数 面積 |
賃料 共益費 |
保証金 敷金 |
償却 礼金 |
保証金/敷金 償却/礼金 |
入居時期 | 詳細 | お気に入り |
|---|---|---|---|---|---|---|---|---|---|
|
3階 -- |
25.12坪 83.04㎡ |
要相談 6.9万円 |
-- 12ヶ月 |
-- -- |
--/12ヶ月 --/-- |
即時 |
詳細を見る |
| 平面図 | 所在階 | 坪数 面積 |
賃料 共益費 |
保証金 敷金 |
償却 礼金 |
保証金/敷金 償却/礼金 |
入居時期 | 詳細 | お気に入り |
|---|---|---|---|---|---|---|---|---|---|
|
B1階 -- |
24.11坪 79.7㎡ |
要相談 5.3万円 |
8ヶ月 -- |
-- -- |
8ヶ月/-- --/-- |
即時 |
詳細を見る |
| 平面図 | 所在階 | 坪数 面積 |
賃料 共益費 |
保証金 敷金 |
償却 礼金 |
保証金/敷金 償却/礼金 |
入居時期 | 詳細 | お気に入り |
|---|---|---|---|---|---|---|---|---|---|
|
7階 -- |
26.29坪 86.9㎡ |
132万円 -- |
-- 要相談 |
-- -- |
--/要相談 --/-- |
即時 |
詳細を見る | |
|
9階 -- |
30.48坪 100.76㎡ |
154万円 -- |
-- 要相談 |
-- -- |
--/要相談 --/-- |
即時 |
詳細を見る |
- 住所
- 東京都港区六本木7丁目8-8
- 駅徒歩
-
東京メトロ日比谷線「六本木」駅 徒歩3分
- 施工年月
- 1985年01月
- 階数
- B1F~10F
- 構造
- 鉄骨鉄筋コンクリート(SRC)
- 坪数/面積
- 36.22坪 / 119.73㎡
ミクニ六本木ビル
- 住所
- 東京都港区六本木7丁目8-8
- 駅徒歩
-
東京メトロ日比谷線「六本木」駅 徒歩3分
- 施工年月
- 1985年01月
- 階数
- B1F~10F
- 構造
- 鉄骨鉄筋コンクリート(SRC)
- 坪数/面積
-
36.22坪
119.73㎡
| 平面図 | 所在階 | 坪数 面積 |
賃料 共益費 |
保証金 敷金 |
償却 礼金 |
保証金/敷金 償却/礼金 |
入居時期 | 詳細 | お気に入り |
|---|---|---|---|---|---|---|---|---|---|
|
6階 -- |
36.22坪 119.73㎡ |
79.68万円 11.95万円 |
-- 10ヶ月 |
2ヶ月 2ヶ月 |
--/10ヶ月 2ヶ月/2ヶ月 |
即時 |
詳細を見る |
| 平面図 | 所在階 | 坪数 面積 |
賃料 共益費 |
保証金 敷金 |
償却 礼金 |
保証金/敷金 償却/礼金 |
入居時期 | 詳細 | お気に入り |
|---|---|---|---|---|---|---|---|---|---|
|
4階 -- |
37.81坪 124.99㎡ |
72.59万円 2.19万円 |
3ヶ月 -- |
-- -- |
3ヶ月/-- --/-- |
即時 |
詳細を見る |
- 住所
- 東京都港区六本木7丁目18-13
- 駅徒歩
-
東京メトロ日比谷線「六本木」駅 徒歩2分
- 施工年月
- 2023年01月
- 階数
- ~10F
- 構造
- 鉄筋コンクリート(RC)
- 坪数/面積
- 38.97坪 / 128.82㎡
シークエル六本木
- 住所
- 東京都港区六本木7丁目18-13
- 駅徒歩
-
東京メトロ日比谷線「六本木」駅 徒歩2分
- 施工年月
- 2023年01月
- 階数
- ~10F
- 構造
- 鉄筋コンクリート(RC)
- 坪数/面積
-
38.97坪
128.82㎡
| 平面図 | 所在階 | 坪数 面積 |
賃料 共益費 |
保証金 敷金 |
償却 礼金 |
保証金/敷金 償却/礼金 |
入居時期 | 詳細 | お気に入り |
|---|---|---|---|---|---|---|---|---|---|
|
5階 -- |
38.97坪 128.82㎡ |
83.59万円 6.43万円 |
6ヶ月 -- |
-- -- |
6ヶ月/-- --/-- |
即時 |
詳細を見る |
| 平面図 | 所在階 | 坪数 面積 |
賃料 共益費 |
保証金 敷金 |
償却 礼金 |
保証金/敷金 償却/礼金 |
入居時期 | 詳細 | お気に入り |
|---|---|---|---|---|---|---|---|---|---|
|
5階 -- |
50.49坪 166.94㎡ |
96.8万円 -- |
6ヶ月 -- |
-- -- |
6ヶ月/-- --/-- |
予定 2026年04月15日 |
詳細を見る |
| 平面図 | 所在階 | 坪数 面積 |
賃料 共益費 |
保証金 敷金 |
償却 礼金 |
保証金/敷金 償却/礼金 |
入居時期 | 詳細 | お気に入り |
|---|---|---|---|---|---|---|---|---|---|
|
5階 -- |
30.85坪 101.98㎡ |
44.11万円 -- |
-- 6ヶ月 |
-- 2ヶ月 |
--/6ヶ月 --/2ヶ月 |
即時 |
詳細を見る |
| 平面図 | 所在階 | 坪数 面積 |
賃料 共益費 |
保証金 敷金 |
償却 礼金 |
保証金/敷金 償却/礼金 |
入居時期 | 詳細 | お気に入り |
|---|---|---|---|---|---|---|---|---|---|
|
1-3階 -- |
119.54坪 395.17㎡ |
330万円 -- |
-- -- |
-- -- |
--/-- --/-- |
即時 |
詳細を見る |
| 平面図 | 所在階 | 坪数 面積 |
賃料 共益費 |
保証金 敷金 |
償却 礼金 |
保証金/敷金 償却/礼金 |
入居時期 | 詳細 | お気に入り |
|---|---|---|---|---|---|---|---|---|---|
|
3階 -- |
35.12坪 116.11㎡ |
65.67万円 -- |
-- 6ヶ月 |
-- -- |
--/6ヶ月 --/-- |
即時 |
詳細を見る |




















