TEL03-3574-9651
営業時間:09:00~18:00 定休日:土日祝
港区や新橋駅周辺の賃貸事務所 > (事務所(賃貸))路線・駅から探す > JR山手線 > 新橋駅 > 川口ビル > 3階
川口ビルの募集チラシはこちら
★是非一度ご内見下さい。


※1. 仲介手数料は仮の価格となりますので、実際の価格に関してはお気軽にお問い合わせ下さい。
※2. 1か月を30日として計算しています。

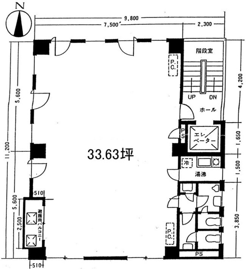
| 所在地 | 東京都港区新橋6丁目7-1 | ||
|---|---|---|---|
| 交通 | |||
| 賃料/坪単価 | 40.6923万円/1.21万円 | 坪数(面積) | 33.63坪(111.17㎡) |
| 管理費・共益費 | 36,993円 | 敷金/礼金/保証金 | 0ヶ月/0万円/6ヶ月 |
| 償却/敷引 | 0.0002万円/- | 更新料 | 1ヶ月(新賃料) |
| 権利金/雑費 | -/- | ||
| 造作譲渡金 | - | 駐車場/月額料金 | -/- |
| 保険加入/料金 | 有/- | 保険名/保険期間 | -/- |
| 保証人代行義務 | - | 保証会社 | - |
| 保証会社詳細 | - | 向き | - |
| 築年月 | 1980年 8月 | 契約期間 | 2年 |
| 種別/構造 | 事務所/鉄筋コンクリート | 部屋/所在階/階建 | 3階/3階/- |
| 総戸数 | - | 現況/引渡時期 | 空家/即時 |
| 取引態様 | 専任媒介 | 用途地域 | - |
| 物件番号 | 96352243 | 取引条件の有効期限 | 2025年11月18日 |
| 設備条件 |
|
||
| 備考 | トイレ男女別にリニューアル 流し台交換済み LED照明交換済み 夜間エレベーター不停止付き(夜23時に停止します) 保証会社に加入して頂く場合があります。 | ||
| 取扱会社 |
|
||
| QRコード |
このQRコードを読み取ることで、スマホでも物件情報を確認できます。 |
||
※地図上に表示される物件の位置は付近住所に所在することを表すものであり、実際の物件所在地とは異なる場合がございます。
港区の町名から探す
港区にある駅から探す