内見・物件紹介等のご相談はこちらをクリック! または03-3574-9651(平日9:00~18:00)

港区や新橋駅周辺の賃貸事務所 > (事業用(賃貸))路線・駅から探す > JR山手線 > 新橋駅 > 汐留AZビル

汐留AZビル

物件写真 PHOTO GALLERY


  • 【外観】汐留AZビル

※写真や図と実際の現状とが異なる場合は現状を優先させていただきます。

コメント
【外観】

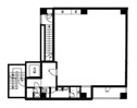
間取り FLOOR PLANS


汐留AZビルの空室情報 VACANCY INFORMATION

5


所在階 賃料/坪単価 管理費・共益費 敷金 礼金 坪数 面積 詳細 お問い合わせ
2階 56.57万円 /
1.75万円
- 10ヶ月 1ヶ月 32.32坪 106.87㎡
4階 61.4万円 /
1.75万円
- 10ヶ月 1ヶ月 35.08坪 116.00㎡
5階 61.4万円 /
1.75万円
- 10ヶ月 1ヶ月 35.08坪 116.00㎡
7階 40.87万円 /
1.54万円
87,582円 10ヶ月 1ヶ月 26.54坪 87.73㎡
8階 要相談 /
要相談
64,548円 10ヶ月 1ヶ月 19.56坪 64.66㎡

汐留AZビルの物件概要 OVERVIEW


情報の見方
所在地 東京都港区東新橋2丁目6-6
交通

山手線新橋」駅 徒歩7分

都営三田線御成門」駅 徒歩8分

賃料/坪単価 要相談 / 要相談 管理費・共益費 0円~87,582円
坪数/面積 19.56坪~35.08坪 / 64.66㎡~116.00㎡ 築年月 1985年 4月
種別/構造 事務所 / 鉄骨鉄筋コンクリート 階建 8階建 地下1階
取扱会社
  • 株式会社ダク・エンタープライズ
  • 東京都港区新橋3丁目26-3 会計ビル
  • TEL:03-3574-9651
  • 東京都知事 (14) 第25440号
  • 、東京都宅地建物取引業協会、全国宅地建物取引業保証協会、愛宕警察防犯協力会、東日本不動産流通機構(東日本レインズ)、芝法人会、芝間税会、地元町内会、東京商工会議所、全国賃貸不動産管理業協会、賃貸住宅管理業者登録、国土交通大臣(1)第1368号

マップMAP


※地図上に表示される物件の位置は付近住所に所在することを表すものであり、実際の物件所在地とは異なる場合がございます。

汐留AZビルへのお問い合わせCONTACT US


株式会社ダク・エンタープライズ

03-3574-9651

〒105-0004
東京都港区新橋3丁目26-3 会計ビル

09:00~18:00  定休日:土日祝

この物件にお問い合わせする

汐留AZビルへのお問い合わせ contact us


必要項目の入力

0/0
必須項目完了

確認画面へ
お進み下さい

0/0
必須項目完了

確認画面へ
お進み下さい

必須

お名前

必須

メールアドレス

必須

電話番号

任意

お問い合わせ1

任意

お問い合わせ2

任意

お問い合わせ3

任意

お問い合わせ4

任意

その他

利用規約及びプライバシーポリシーを必ずお読みください。左記内容に同意いただいた場合は、確認画面へお進みください。

未入力項目があります

汐留AZビルと地域が近い物件RECOMMENDED


汐留AZビルと最寄駅が近い物件RECOMMENDED


お問い合わせCONTACT US


株式会社ダク・エンタープライズ

会社画像

03-3574-9651

営業時間:09:00~18:00  定休日:土日祝

〒105-0004
東京都港区新橋3丁目26-3 会計ビル

希望物件リクエスト

新着物件NEW ARRIVAL


×

トップへ戻る