内見・物件紹介等のご相談はこちらをクリック! または03-3574-9651(平日9:00~18:00)

港区や新橋駅周辺の賃貸事務所 > (事業用(賃貸))路線・駅から探す > 東京メトロ日比谷線 > 三ノ輪駅 > 東日暮里計画

東日暮里計画

【物件路線:駅紹介】

東日暮里計画(荒川区東日暮里1-16)は、東京メトロ日比谷線「三ノ輪」駅徒歩3分に位置する賃貸店舗ビルです。

【物件の設備、特徴等】

設備面ではスケルトン渡しとなります。 2026年7月竣工予定、地上5階建、鉄骨造の新耐震基準適合物件です。クリニック限定のビルとなります。1階は一括貸可能です。


懐かしい下町風情だけではなく、中小規模の賃貸事務所・貸店舗も多くみられビジネスの場所としても栄えるここ日暮里エリアで貸事務所をお探しなら、株式会社ダク・エンタープライズまでぜひお問い合わせください。

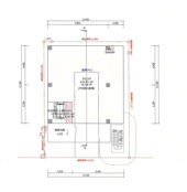
間取り FLOOR PLANS


東日暮里計画の空室情報 VACANCY INFORMATION

4


所在階 賃料/坪単価 管理費・共益費 敷金 礼金 坪数/面積 詳細 お問い合わせ
2階 95.5924万円 /
2.2万円
- 6ヶ月 1ヶ月 43.45坪 /
143.63㎡
3階 86.0332万円 /
1.98万円
- 6ヶ月 1ヶ月 43.45坪 /
143.63㎡
4階 86.0332万円 /
1.98万円
- 6ヶ月 1ヶ月 43.45坪 /
143.63㎡
5階 81.2535万円 /
1.87万円
- 6ヶ月 1ヶ月 43.45坪 /
143.63㎡

東日暮里計画の物件概要 OVERVIEW


情報の見方
所在地 東京都荒川区東日暮里1丁目16
交通

日比谷線三ノ輪」駅 徒歩3分

都電荒川線三ノ輪橋」駅 徒歩6分

都電荒川線荒川一中前」駅 徒歩7分

賃料/坪単価 81.2535万円~95.5924万円 / 1.87万円~2.2万円 管理費・共益費 0円
坪数/面積 43.45坪 / 143.63㎡ 築年月 2026年 7月
種別/構造 店舗一部 / 鉄骨造 階建 5階建
備考 【物件路線:駅紹介】

東日暮里計画(荒川区東日暮里1-16)は、東京メトロ日比谷線「三ノ輪」駅徒歩3分に位置する賃貸店舗ビルです。

【物件の設備、特徴等】

設備面ではスケルトン渡しとなります。 2026年7月竣工予定、地上5階建、鉄骨造の新耐震基準適合物件です。クリニック限定のビルとなります。1階は一括貸可能です。


【エリア情報】

日暮里駅は近隣の西日暮里駅(徒歩10分未満)を含めると、山手線、京浜東北線、地下鉄千代田線、常磐線、京成線、舎人ライナーと多くの沿線が利用でき、大変交通アクセスが優れています。 日暮里駅周辺はサンマークシティや駅ナカ商業施設のエキュート日暮里等の近代都市の一面と、観光スポットとしても谷根千エリアが近くにあり、近年では多くの外国人観光客にも人気のエリアとなっております。 谷中銀座を始めとする下町情緒あふれる商店街や繊維問屋街などの昔ながらの街並みの一面も見られるとても興味深い街です。

懐かしい下町風情だけではなく、中小規模の賃貸事務所・貸店舗も多くみられビジネスの場所としても栄えるここ日暮里エリアで貸事務所をお探しなら、株式会社ダク・エンタープライズまでぜひお問い合わせください。
取扱会社
  • 株式会社ダク・エンタープライズ
  • 東京都港区新橋3丁目26-3 会計ビル
  • TEL:03-3574-9651
  • 東京都知事 (14) 第25440号
  • 、東京都宅地建物取引業協会、全国宅地建物取引業保証協会、愛宕警察防犯協力会、東日本不動産流通機構(東日本レインズ)、芝法人会、芝間税会、地元町内会、東京商工会議所、全国賃貸不動産管理業協会、賃貸住宅管理業者登録、国土交通大臣(1)第1368号

マップMAP


※地図上に表示される物件の位置は付近住所に所在することを表すものであり、実際の物件所在地とは異なる場合がございます。

東日暮里計画へのお問い合わせCONTACT US


株式会社ダク・エンタープライズ

03-3574-9651

〒105-0004
東京都港区新橋3丁目26-3 会計ビル

09:00~18:00  定休日:土日祝

この物件にお問い合わせする

東日暮里計画へのお問い合わせ contact us


必要項目の入力

0/0
必須項目完了

確認画面へ
お進み下さい

0/0
必須項目完了

確認画面へ
お進み下さい

必須

お名前

必須

メールアドレス

必須

電話番号

任意

お問い合わせ1

任意

お問い合わせ2

任意

お問い合わせ3

任意

お問い合わせ4

任意

その他

利用規約及びプライバシーポリシーを必ずお読みください。左記内容に同意いただいた場合は、確認画面へお進みください。

未入力項目があります

お問い合わせCONTACT US


株式会社ダク・エンタープライズ

会社画像

03-3574-9651

営業時間:09:00~18:00  定休日:土日祝

〒105-0004
東京都港区新橋3丁目26-3 会計ビル

希望物件リクエスト

新着物件NEW ARRIVAL


  • 2025-12-11


    東日暮里計画の画像

    東日暮里計画

    東京都荒川区東日暮里1丁目16

    日比谷線「三ノ輪」駅 徒歩3分

  • 2025-12-11


    東日暮里計画の画像

    東日暮里計画

    東京都荒川区東日暮里1丁目16

    日比谷線「三ノ輪」駅 徒歩3分

  • 2025-12-11


    東日暮里計画の画像

    東日暮里計画

    東京都荒川区東日暮里1丁目16

    日比谷線「三ノ輪」駅 徒歩3分

×

トップへ戻る