TEL03-3574-9651
営業時間:09:00~18:00 定休日:土日祝
港区や新橋駅周辺の賃貸事務所 > (事業用(賃貸))路線・駅から探す > 東京メトロ日比谷線 > 小伝馬町駅 > 小伝馬町YSビル
※写真や図と実際の現状とが異なる場合は現状を優先させていただきます。
1 件
| 所在階 | 賃料/坪単価 | 管理費・共益費 | 敷金 | 礼金 | 坪数 | 面積 | 詳細 | お問い合わせ |
|---|---|---|---|---|---|---|---|---|
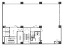
| 3階 |
95.96万円 / 1.32万円 |
319,880円 | 10ヶ月 | 0ヶ月 | 72.70坪 | 240.33㎡ | 詳細を見る | お問い合わせ |
| 所在地 | 東京都中央区日本橋小伝馬町12-5 | ||
|---|---|---|---|
| 交通 | |||
| 賃料/坪単価 | 95.96万円 / 1.32万円 | 管理費・共益費 | 319,880円 |
| 坪数/面積 | 72.70坪 / 240.33㎡ | 築年月 | 1972年 6月 |
| 種別/構造 | 事務所 / 鉄骨鉄筋コンクリート | 階建 | 9階建 地下1階 |
| 取扱会社 |
|
||
※地図上に表示される物件の位置は付近住所に所在することを表すものであり、実際の物件所在地とは異なる場合がございます。
株式会社ダク・エンタープライズ
〒105-0004
東京都港区新橋3丁目26-3 会計ビル
09:00~18:00 定休日:土日祝
東京都中央区日本橋小伝馬町
日比谷線「小伝馬町」駅 徒歩1分
東京都中央区日本橋小伝馬町
日比谷線「小伝馬町」駅 徒歩1分
東京都中央区日本橋本町3丁目
総武本線「新日本橋」駅 徒歩1分
東京都中央区日本橋小伝馬町
日比谷線「小伝馬町」駅 徒歩1分
2025-11-18
東京都中央区京橋2丁目9-12
都営浅草線「宝町」駅 徒歩3分
2025-11-18
東京都中央区京橋2丁目9-12
都営浅草線「宝町」駅 徒歩3分
2025-11-18
東京都中央区築地2丁目1-4
有楽町線「新富町」駅 徒歩2分

小伝馬町YSビルに関するこだわり条件から探す
中央区の町名から探す