TEL03-3574-9651
営業時間:09:00~18:00 定休日:土日祝
港区や新橋駅周辺の賃貸事務所 > (事業用(賃貸))路線・駅から探す > 東京メトロ日比谷線 > 広尾駅 > 広尾アーバンビル
※写真や図と実際の現状とが異なる場合は現状を優先させていただきます。
1 件
| 所在階 | 賃料/坪単価 | 管理費・共益費 | 敷金 | 礼金 | 坪数 | 面積 | 詳細 | お問い合わせ |
|---|---|---|---|---|---|---|---|---|
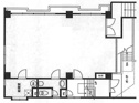
| 1階 |
61.6万円 / 2.87万円 |
- | 0ヶ月 | 1ヶ月 | 21.42坪 | 70.84㎡ | 詳細を見る | お問い合わせ |
| 所在地 | 東京都港区南麻布4丁目5-65 | ||
|---|---|---|---|
| 交通 | |||
| 賃料/坪単価 | 61.6万円 / 2.87万円 | 管理費・共益費 | - |
| 坪数/面積 | 21.42坪 / 70.84㎡ | 築年月 | 1982年 1月 |
| 種別/構造 | 事務所 / 鉄筋コンクリート | 階建 | 3階建 地下1階 |
| 取扱会社 |
|
||
※地図上に表示される物件の位置は付近住所に所在することを表すものであり、実際の物件所在地とは異なる場合がございます。
株式会社ダク・エンタープライズ
〒105-0004
東京都港区新橋3丁目26-3 会計ビル
09:00~18:00 定休日:土日祝
東京都港区東麻布1丁目
都営大江戸線「赤羽橋」駅 徒歩6分
東京都港区新橋6丁目
都営三田線「御成門」駅 徒歩2分
東京都港区芝5丁目
山手線「田町」駅 徒歩7分
東京都港区赤坂8丁目
千代田線「乃木坂」駅 徒歩1分
東京都港区西麻布4丁目
日比谷線「広尾」駅 徒歩10分
東京都渋谷区恵比寿1丁目
山手線「恵比寿」駅 徒歩2分
東京都渋谷区恵比寿2丁目
山手線「恵比寿」駅 徒歩9分
東京都港区南麻布5丁目
日比谷線「広尾」駅 徒歩1分
2025-12-12
東京都港区芝大門2丁目8-13
山手線「浜松町」駅 徒歩5分
2025-12-12
東京都港区芝4丁目5-10
都営三田線「三田」駅 徒歩3分
2025-12-12
東京都港区虎ノ門1丁目2-20
銀座線「虎ノ門」駅 徒歩2分

港区の町名から探す
港区にある駅から探す