内見・物件紹介等のご相談はこちらをクリック! または03-3574-9651(平日9:00~18:00)

港区や新橋駅周辺の賃貸事務所 > (事業用(賃貸))路線・駅から探す > 都営地下鉄都営三田線 > 御成門駅 > 御成門コープ

御成門コープ

【物件路線:駅紹介】

御成門エリアの貸事務所・賃貸オフィスである御成門コープ(東京都港区西新橋3-24-1)は、都営三田線「御成門」駅徒歩1分、東京メトロ日比谷線「神谷町」駅徒歩9分、都営浅草線「大門」駅徒歩9分の場所に位置します。 外観は赤煉瓦がアクセントになっています。

【物件の設備、特徴等】

設備面として特筆すべきことは、個別空調完備、光ファイバー導入済みな点です。そして新橋、西新橋エリアでは珍しい駐車場付きの駅近の貸事務所であることだと思います。 御成門コープは1970年竣工、地上5階建ての鉄筋コンクリート造の貸ビルです。

【エリア情報】

物件の近くには芝郵便局や東京慈恵会医科大学付属病院、愛宕警察署などがあります。 周辺にはコンビニもいくつがございますのでとても便利です。マンションタイプの貸事務所・賃貸オフィスは希少であり、空室になることを待っている企業もいるようです。

その他にも郵便局や銀行など御成門駅の周辺には、何かと重宝する施設がありますので、オフィスを構えるにはもってこいの立地です。

都営三田線の駅で大手町などにすぐアクセス可能でありながら、徒歩圏内には多くの駅があり複数の路線を利用できる便利な御成門駅。

株式会社ダク・エンタープライズは御成門駅周辺を始めとして、御成門コープ以外にも港区内の多くの貸事務所の情報を取り扱っています。
もし御成門駅周辺で貸事務所をお探しでしたら、是非弊社までお声掛け下さい。

物件写真 PHOTO GALLERY


敷0 礼0

  • 【外観】御成門コープ
  • 御成門コープ
  • 【内装】御成門コープ
  • 【内装】御成門コープ
  • 【内装】御成門コープ
  • 【内装】御成門コープ
  • 【内装】御成門コープ
  • 【内装】御成門コープ
  • 【内装】御成門コープ
  • 【内装】御成門コープ
  • 【内装】御成門コープ
  • 【内装】御成門コープ
  • 【内装】御成門コープ
  • 【内装】御成門コープ
  • 【内装】御成門コープ
  • 【内装】御成門コープ
  • 【内装】御成門コープ
  • 【内装】御成門コープ
  • 【内装】御成門コープ
  • 【内装】御成門コープ
  • 【内装】御成門コープ
  • 【内装】御成門コープ
  • 【内装】御成門コープ
  • 【内装】御成門コープ
  • 【キッチン】御成門コープ
  • 【その他】御成門コープ
  • 【トイレ】御成門コープ
  • 【洗面所】御成門コープ
  • 【トイレ】御成門コープ
  • 【トイレ】御成門コープ
  • 【周辺】御成門コープ
  • 【周辺】御成門コープ
  • 【周辺】御成門コープ
  • 【周辺】御成門コープ
  • 【周辺】御成門コープ
  • 【周辺】御成門コープ
  • 【外観】御成門コープ
  • 【エントランス】御成門コープ

※写真や図と実際の現状とが異なる場合は現状を優先させていただきます。

コメント
【外観】

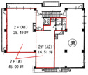
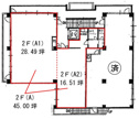
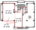
間取り FLOOR PLANS


御成門コープの空室情報 VACANCY INFORMATION

5


所在階 賃料/坪単価 管理費・共益費 敷金 礼金 坪数 面積 詳細 お問い合わせ
2階 25.42万円 /
1.54万円
- 0ヶ月 0ヶ月 16.51坪 54.57㎡
2階 43.87万円 /
1.54万円
- 0ヶ月 0ヶ月 28.49坪 94.18㎡
2階 43.87万円 /
1.54万円
- 0ヶ月 0ヶ月 28.49坪 94.18㎡
2階 69.3万円 /
1.54万円
- 0ヶ月 0ヶ月 45.00坪 148.76㎡
3階 21.82万円 /
1.54万円
- 0ヶ月 0ヶ月 14.17坪 46.84㎡

御成門コープの過去に掲載したお部屋 ARCHIVE

1


所在階 賃料/坪単価 管理費・共益費 敷金 礼金 坪数 面積 詳細 お問い合わせ
4階 ***万円 *** *** *** *** ***

現況の確認はお気軽にお問い合わせください。

御成門コープの物件概要 OVERVIEW


情報の見方
所在地 東京都港区西新橋3丁目24-1
交通

都営三田線御成門」駅 徒歩1分

日比谷線神谷町」駅 徒歩9分

都営浅草線大門」駅 徒歩9分

賃料/坪単価 21.82万円~69.3万円 / 1.54万円 管理費・共益費 0円
坪数/面積 14.17坪~45.00坪 / 46.84㎡~148.76㎡ 築年月 1970年 10月
種別/構造 事務所 / 鉄筋コンクリート 階建 5階建
備考 【物件路線:駅紹介】

御成門コープ(東京都港区西新橋3-24-1)は、都営三田線「御成門」駅徒歩1分、東京メトロ日比谷線「神谷町」駅徒歩9分、都営浅草線「大門」駅徒歩9分の場所に位置します。 外観は赤煉瓦がアクセントになっています。

【物件の設備、特徴等】

設備面としては、個別空調完備、光ファイバー導入済みな点です。そして新橋、西新橋エリアでは珍しい駐車場付きの駅近の貸事務所であることだと思います。 御成門コープは1970年竣工、地上5階建ての鉄筋コンクリート造の貸ビルです。エアコン、電気温水器、 ウォームレットを2024年6月に新規設置します。

【物件の周辺状況】

物件の近くには芝郵便局や東京慈恵会医科大学付属病院、愛宕警察署などがあります。 周辺にはコンビニもいくつがございますのでとても便利です。マンションタイプの貸事務所・賃貸オフィスは希少であり、空室になることを待っている企業もいるようです。

【エリア情報】

物件エリアの説明、施設、イベント等自由に東京都港区にある御成門駅は都営三田線の駅で、周辺には東京タワーや芝公園、増上寺があり大都会に居ながらも自然を感じられる場所です。 元々は増上寺の裏門として作られた場所でしたが、将軍が参詣する際は裏手から入ることが多く、将軍様が御成する門ということで、御成門の名称がつきました。
大手町駅まで6 分、目黒駅まで10 分とアクセスは非常に良いですが、都心の主要な駅に行くためには、どうしても一本乗り換えが必要なことがネックになります。

しかし御成門駅近くのどの辺りに貸事務所を借りるかにも寄りますが、新橋駅、神谷町駅、大門駅まで徒歩圏内なため、さほど気にならないと思います。

その他にも郵便局や銀行など御成門駅の周辺には、何かと重宝する施設がありますので、オフィスを構えるにはもってこいの立地です。

都営三田線の駅で大手町などにすぐアクセス可能でありながら、徒歩圏内には多くの駅があり複数の路線を利用できる便利な御成門駅。

株式会社ダク・エンタープライズは御成門駅周辺を始めとして、御成門コープ以外にも港区内の多くの貸事務所の情報を取り扱っています。
もし御成門駅周辺で貸事務所をお探しでしたら、是非弊社までお声掛け下さい。
取扱会社
  • 株式会社ダク・エンタープライズ
  • 東京都港区新橋3丁目26-3 会計ビル
  • TEL:03-3574-9651
  • 東京都知事 (14) 第25440号
  • 、東京都宅地建物取引業協会、全国宅地建物取引業保証協会、愛宕警察防犯協力会、東日本不動産流通機構(東日本レインズ)、芝法人会、芝間税会、地元町内会、東京商工会議所、全国賃貸不動産管理業協会、賃貸住宅管理業者登録、国土交通大臣(1)第1368号

マップMAP


※地図上に表示される物件の位置は付近住所に所在することを表すものであり、実際の物件所在地とは異なる場合がございます。

御成門コープへのお問い合わせCONTACT US


株式会社ダク・エンタープライズ

03-3574-9651

〒105-0004
東京都港区新橋3丁目26-3 会計ビル

09:00~18:00  定休日:土日祝

この物件にお問い合わせする

御成門コープへのお問い合わせ contact us


必要項目の入力

0/0
必須項目完了

確認画面へ
お進み下さい

0/0
必須項目完了

確認画面へ
お進み下さい

必須

お名前

必須

メールアドレス

必須

電話番号

任意

お問い合わせ1

任意

お問い合わせ2

任意

お問い合わせ3

任意

お問い合わせ4

任意

その他

利用規約及びプライバシーポリシーを必ずお読みください。左記内容に同意いただいた場合は、確認画面へお進みください。

未入力項目があります

御成門コープと地域が近い物件RECOMMENDED


御成門コープと最寄駅が近い物件RECOMMENDED


お問い合わせCONTACT US


株式会社ダク・エンタープライズ

会社画像

03-3574-9651

営業時間:09:00~18:00  定休日:土日祝

〒105-0004
東京都港区新橋3丁目26-3 会計ビル

希望物件リクエスト

新着物件NEW ARRIVAL


×

トップへ戻る