TEL 03-3574-9651

営業時間 09:00~18:00 定休日:土日祝

Tsao Hibiya 10階

賃料
--
坪単価
--
坪数/面積
110.33坪
/
364.74㎡
所在階
10階
/
--
管理費・共益費
--
保証金
12ヶ月
償却
--
敷金/礼金
--
/
--

TEL 03-3574-9651

営業時間 09:00~18:00 定休日:土日祝

物件概要Overview

物件名
Tsao Hibiya
階数
10階
竣工
2017年11月
耐震
新耐震
用途/仕様
事務所

アクセスAccess

住所
東京都港区新橋3丁目3-13
駅徒歩
山手線
新橋」駅
徒歩5分
銀座線
新橋」駅
徒歩6分
都営三田線
内幸町」駅
徒歩6分

設備詳細Equipment

設備
エレベーター
24時間使用
24時間利用可能
空調
個別空調
床仕様
OAフロア
トイレ
男女トイレ別
セキュリティ
インターネット
光ファイバー
店舗

備考Remarks

賃料:相談
入居時期:相談
機械式駐車場(空状況要確認) 
エレベーター3基 
エントランス:平日7:00~20:30(時間外はセキュリティカードで入館) 
土日祝:close 
温水洗浄便座 
天井高2,800mm  
各フロアに多目的トイレ設置 
内装付セットアップオフィス
面積にはトイレ、水廻りを含みます

担当者のコメントComment

Tsao Hibiya (港区新橋3-3-13)は、JR線「新橋」駅徒歩5分、東京メトロ銀座線「新橋」駅徒歩6分、都営三田線「内幸町」駅徒歩6分の日比谷通りに面した賃貸オフィスビルです。 

Tsao Hibiyaの設備面では、24時間使用可能、エレベーター、個別空調、機械警備、男女別トイレ、光ファイバー導入済です。 

2017年竣工、地上12階・地下1階建、鉄骨鉄筋コンクリート造の新耐震基準適合の物件です。

白を基調としたモダンな外観が特長で築年数も浅いのでとても綺麗なビルです。

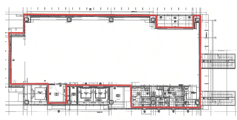
Tsao Hibiyaは基準階が約365坪の大型オフィスです。 長方形の間取りで無柱空間のためレイアウト効率がよく天井には加湿システムが完備されています。又、共用シャワールームやハンディキャップWCもありますのでとても快適に仕事ができる環境が整ったビルといえます。 入口には芝生、エレベーターホールにも緑があり、癒されるとともに環境にも配慮した優しいビルです。

港区新橋エリアの物件情報はダク・エンタープライズが数多くご紹介しております。
貸事務所、貸店舗をお探しの際はお気軽にご相談ください。

ご希望の条件やご予算、移転時期など、
どんなことでもまずはお聞かせください。

物件情報やオフィス・事務所の
内見に関するご相談など
お気軽にご相談ください

ご希望の条件やご予算、移転時期など、
どんなことでもまずはお聞かせください。
  • 物件の資料請求、お問い合わせ

    ご希望の条件をお聞かせいただければ、
    最適な物件をご提案いたします。
    資料請求やご質問など、
    まずはお気軽にお問い合わせください。

  • 内見希望

    気になる物件がございましたら、実際に現地をご覧いただけます。立地や設備、周辺環境など、写真だけでは分からない詳細をご確認ください。

  • オフィスの移転に関する相談

    移転時期、予算、規模など、お客様のご要望に合わせたオフィス移転プランをご提案。課題解決から新オフィスの選定まで、サポートいたします。

お問い合わせContact

  1. 1必要項目の入力
  2. 2入力内容の確認
  3. 3お問い合わせ完了
要望
物件情報
御社名
お名前
ふりがな
メールアドレス
電話番号
お問い合わせ内容