TEL 03-3574-9651

営業時間 09:00~18:00 定休日:土日祝

ARISTO三田 4階

賃料
62.64万円
坪単価
3.96万円
坪数/面積
15.82坪
/
52.32㎡
所在階
4階
/
--
管理費・共益費
--
保証金
--
償却
2ヶ月
敷金/礼金
5ヶ月
/
--

TEL 03-3574-9651

営業時間 09:00~18:00 定休日:土日祝

物件概要Overview

物件名
ARISTO三田
階数
4階
竣工
2024年03月
耐震
新耐震
用途/仕様
事務所

アクセスAccess

住所
東京都港区芝5丁目19-6
駅徒歩
都営浅草線
三田」駅
徒歩1分
都営三田線
三田」駅
徒歩1分
山手線
田町」駅
徒歩3分

設備詳細Equipment

設備
エレベーター
24時間使用
24時間利用可能
空調
個別空調
床仕様
トイレ
男女トイレ別
セキュリティ
インターネット
光ファイバー
店舗

備考Remarks

入居時期:2026年7月末予定

担当者のコメントComment

ARISTO三田(港区芝5-19-6)は、都営浅草線、都営三田線「三田」駅各徒歩1分、JR山手線「田町」駅徒歩3分と駅近の賃貸オフィスです。

設備面では、24時間使用可能、個別空調、OAフロア、男女別トイレ、光ファイバー導入済、エレベーター付です。

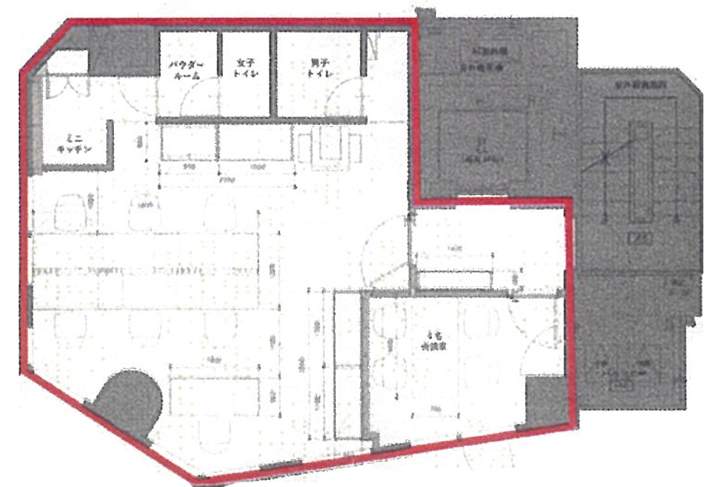
セットアップオフィスとなります。 会議室もございます。

竣工は2024年、地上12階建、鉄筋コンクリート造の新耐震基準適合物件です。 


オフィス街として必要な施設と交通アクセスがあり、事業を行なう場所としてぴったりの港区芝エリア。

株式会社ダク・エンタープライズでは、港区芝エリアのさまざまな貸事務所情報をご紹介しております。開業・移転などで新しい事務所やオフィスをお探しの際は、ぜひご相談ください。

ご希望の条件やご予算、移転時期など、
どんなことでもまずはお聞かせください。

物件情報やオフィス・事務所の
内見に関するご相談など
お気軽にご相談ください

ご希望の条件やご予算、移転時期など、
どんなことでもまずはお聞かせください。
  • 物件の資料請求、お問い合わせ

    ご希望の条件をお聞かせいただければ、
    最適な物件をご提案いたします。
    資料請求やご質問など、
    まずはお気軽にお問い合わせください。

  • 内見希望

    気になる物件がございましたら、実際に現地をご覧いただけます。立地や設備、周辺環境など、写真だけでは分からない詳細をご確認ください。

  • オフィスの移転に関する相談

    移転時期、予算、規模など、お客様のご要望に合わせたオフィス移転プランをご提案。課題解決から新オフィスの選定まで、サポートいたします。

お問い合わせContact

  1. 1必要項目の入力
  2. 2入力内容の確認
  3. 3お問い合わせ完了
要望
物件情報
御社名
お名前
ふりがな
メールアドレス
電話番号
お問い合わせ内容